Daikin RXYQQ12U7Y1B handleiding
Handleiding
Je bekijkt pagina 32 van 48

15 Electrical installation
Installation and operation manual
32
RXYQQ8~20U7Y1B
VRV IV Q+ series heat pump
4P546221-1B – 2020.10
(a) Knockout hole has to be removed. Close the hole to avoid
small animals or dirt from entering.
X1A
c
d
a b a b
8~12 HP 14~20 HP
X1A
c
d
a b a b
5~12 HP 14~20 HP
Fix to the indicated plastic brackets using field supplied clamping
material.
a Wiring between the units (indoor-outdoor) (F1/F2 left)
b Internal transmission wiring (Q1/Q2)
c Plastic bracket
d Field supplied clamps
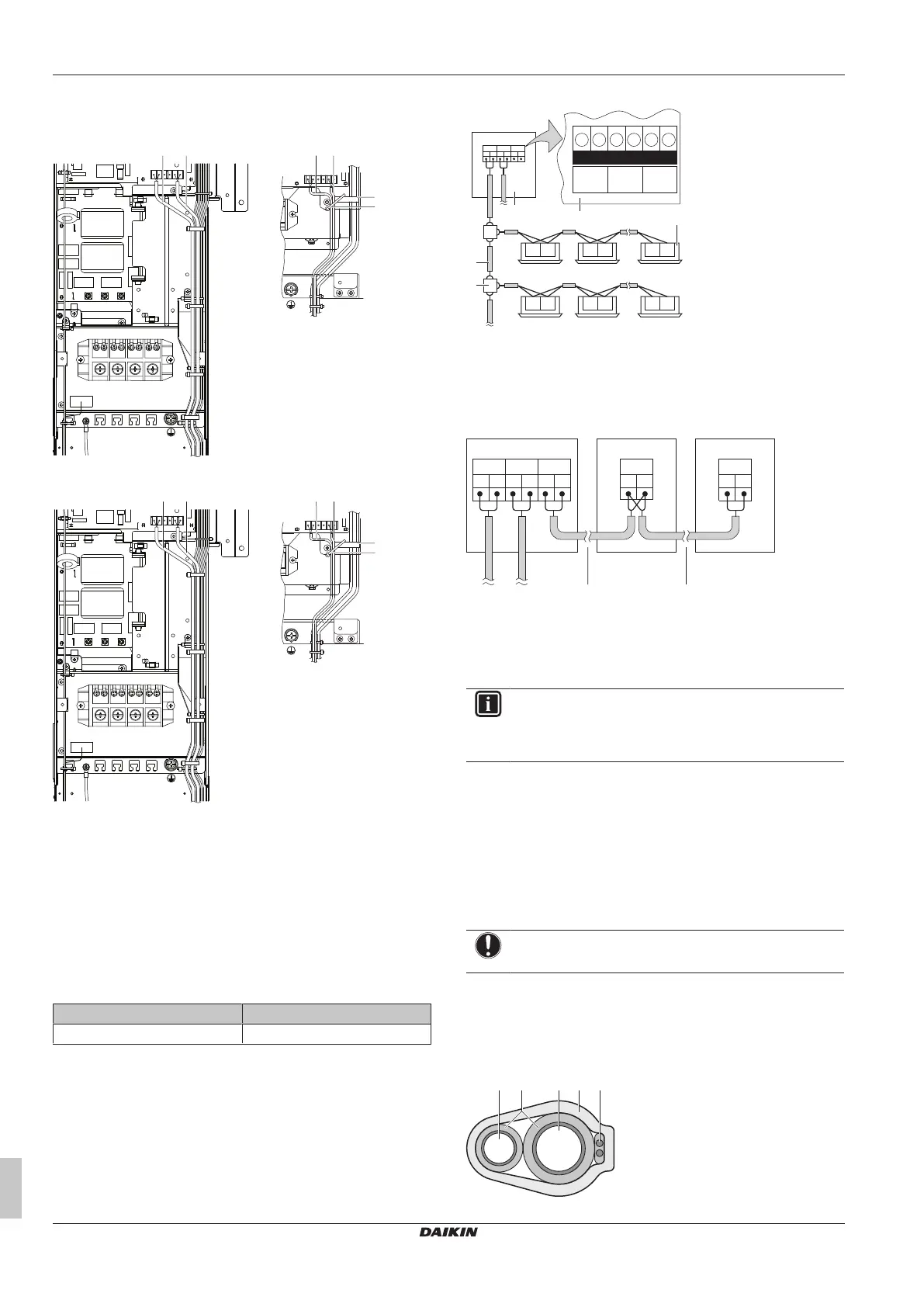
15.5 To connect the transmission wiring
The wiring from the indoor units must be connected to the F1/F2
(In‑Out) terminals on the PCB in the outdoor unit.
Tightening torque for the transmission wiring terminal screws:
Screw size Tightening torque (N•m)
M3.5 (A1P) 0.8~0.96
In case of single outdoor unit installation
F1 F2 F1 F2 Q1 Q2
F1 F1F2 F2 Q1 Q2
F1 F2 F1 F2 F1 F2
F1 F2 F1 F2 F1 F2
b
c
a
d
e
TO IN/D UNIT
TO OUT/D UNIT TO MULTI UNIT
A1P
a Outdoor unit PCB (A1P)
b Use the conductor of sheathed wire (2 wire) (no polarity)
c Terminal board (field supply)
d Indoor unit
e Outdoor unit
In case of multi outdoor unit installation
F1 F2 F1 F2 Q1 Q2 Q1 Q2
A1P
d de
f
ba c
Q1 Q2
a Unit A (master outdoor unit)
b Unit B (slave outdoor unit)
c Unit C (slave outdoor unit)
d Master/slave transmission (Q1/Q2)
e Outdoor/indoor transmission (F1/F2)
f Outdoor unit/other system transmission (F1/F2)
INFORMATION
U-series units cannot share the same refrigerant circuit
with T-series units. However, electrically, U-series units
and T-series units can be connected via F1/F2.
▪ The interconnecting wiring between the outdoor units in the same
piping system must be connected to the Q1/Q2 (Out Multi)
terminals. Connecting the wires to the F1/F2 terminals results in
system malfunction.
▪ The wiring for the other systems must be connected to the F1/F2
(Out-Out) terminals of the PCB in the outdoor unit to which the
interconnecting wiring for the indoor units is connected.
▪ The base unit is the outdoor unit to which the interconnecting
wiring for the indoor units is connected.
NOTICE
Mind the polarity of the transmission wiring.
15.6 To finish the transmission wiring
After installing the transmission wires inside the unit, wrap them
along with the on-site refrigerant pipes using finishing tape, as
shown in figure below.
a bc de
a Liquid pipe
Bekijk gratis de handleiding van Daikin RXYQQ12U7Y1B, stel vragen en lees de antwoorden op veelvoorkomende problemen, of gebruik onze assistent om sneller informatie in de handleiding te vinden of uitleg te krijgen over specifieke functies.
Productinformatie
| Merk | Daikin |
| Model | RXYQQ12U7Y1B |
| Categorie | Niet gecategoriseerd |
| Taal | Nederlands |
| Grootte | 8215 MB |







