Daikin RXYLQ24T7Y1B handleiding
Handleiding
Je bekijkt pagina 37 van 40

20 Technical data
Installation and operation manual
37
RXMLQ8 + RXYLQ10~14T7Y1B*
VRV IV system air conditioner
4P543426-1C – 2025.01
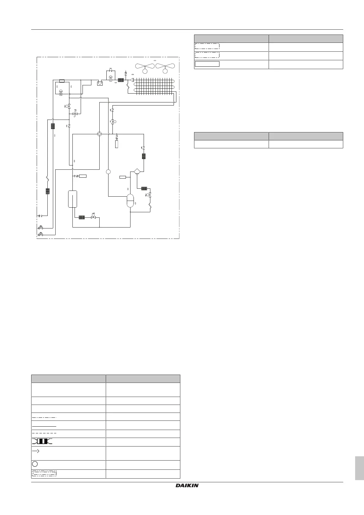
20.2 Piping diagram: Outdoor unit
Piping diagram: RXMLQ8 + RXYLQ10~14
R3T
R8T
R21T
R6T
R5T
R1T
R4T
d
c
b
c
d
h
j
i
f
p
q
o
g
l
e
k
a
r
M2F
M
M1F
M
R7T
R10T
M1C
m
n
S1NPL
S1NPH
S1PH
SV
SV
SV
SV
a Compressor (M1C)
b Heat exchanger
c Fan
d Fan motor (M1F, M2F)
e Accumulator
f Expansion valve, main (Y1E)
g Expansion valve, subcool heat exchanger (Y2E)
h Subcool heat exchanger
i Oil separator
j 4‑way valve, main (Y1S)
k Solenoid valve, oil accumulator (Y2S)
l Solenoid valve, oil1 (Y3S)
m Solenoid valve, injection (Y4S)
n Solenoid valve, hot gas (Y5S)
o Service port, refrigerant charge
p Stop valve (liquid)
q Stop valve (gas)
r Service port
20.3 Wiring diagram: Outdoor unit
The wiring diagram is delivered with the unit, located at the inside of
the service cover.
Notes to go through before starting the unit
English Translation
Notes to go through before
starting the unit
Notes to go through before
starting the unit
Symbols Symbols
X1M Main terminal
Earth wiring
15
Wire number 15
Field wire
Field cable
**
/12.2
Connection ** continues on page
12 column 2
1
Several wiring possibilities
Option
English Translation
Not mounted in switch box
Wiring depending on model
PCB
1 Refer to the installation or service manual on how to use
BS1~BS3 push buttons, and DS1+DS2 DIP switches.
2 Do not operate the unit by short-circuiting protection device
S1PH.
3 For connection of indoor-outdoor F1-F2 transmission wiring,
and outdoor-outdoor F1-F2 transmission wiring, refer to the
service manual.
Position in switch box
English Translation
Position in switch box Position in switch box
Legend
A1P Main PCB
A2P Noise filter PCB
A3P Inverter PCB
A4P SUB PCB
A8P Adapter PCB
A9P * Cool/heat selector PCB
BS* (A1P) Push buttons (mode, set, return)
C* (A3P) Capacitor
DS* (A1P) DIP switch
E1HC Crankcase heater
F1S (A2P) Surge arrestor
F1U (A4P) Fuse (T, 3.15A, 250V)
F401U (A2P) Fuse (T, 6.3A, 250V)
F402U (A2P) Fuse (T, 6.3A, 250V)
F403U (A2P) Fuse (T, 6.3A, 250V)
F410U (A2P) Fuse (T, 63A, 600V)
F411U (A2P) Fuse (T, 63A, 600V)
F412U (A2P) Fuse (T, 63A, 600V)
F*U (A1P) Fuse (T, 3.15A, 250V)
HAP (A1P) Running LED (service monitor – green)
K1M (A3P) Magnetic contactor
K*R (A*P) Magnetic relay
L*R Reactor
M1C Motor (compressor)
M*F Motor (fan)
PS (A1P) Power supply
Q1DI # Earth leakage circuit breaker
Q1RP (A1P) Phase reversal detect circuit
R* (A3P) Resistor
R*T Thermistor
R*V (A2P) Varistor
S1NPH High pressure sensor
S1NPL Low pressure sensor
S1PH High pressure switch (discharge)
S1S Air control switch
S2S Cool/heat switch
S3S Interlock switch
SEG* (A1P) 7-segment display
T1A Leakage current detection sensor
Bekijk gratis de handleiding van Daikin RXYLQ24T7Y1B, stel vragen en lees de antwoorden op veelvoorkomende problemen, of gebruik onze assistent om sneller informatie in de handleiding te vinden of uitleg te krijgen over specifieke functies.
Productinformatie
Merk | Daikin |
Model | RXYLQ24T7Y1B |
Categorie | Niet gecategoriseerd |
Taal | Nederlands |
Grootte | 6679 MB |