Daikin RXYA13A7Y1B handleiding
Handleiding
Je bekijkt pagina 41 van 64

17 Electrical installation
Installation and operation manual
41
RYMA5+RXYA8~20A7Y1B
VRV 5 heat pump
4P739915-1C – 2024.10
Wire type Installation method
Single-core wire
Or
Stranded conductor
wire twisted to "solid-
like" connection
d
a
b c
f
e
a Clockwise curled wire (single-core or
twisted stranded conductor wire)
b Screw
c Spring washer
d Flat washer
e Coupling washer
f Sheet metal
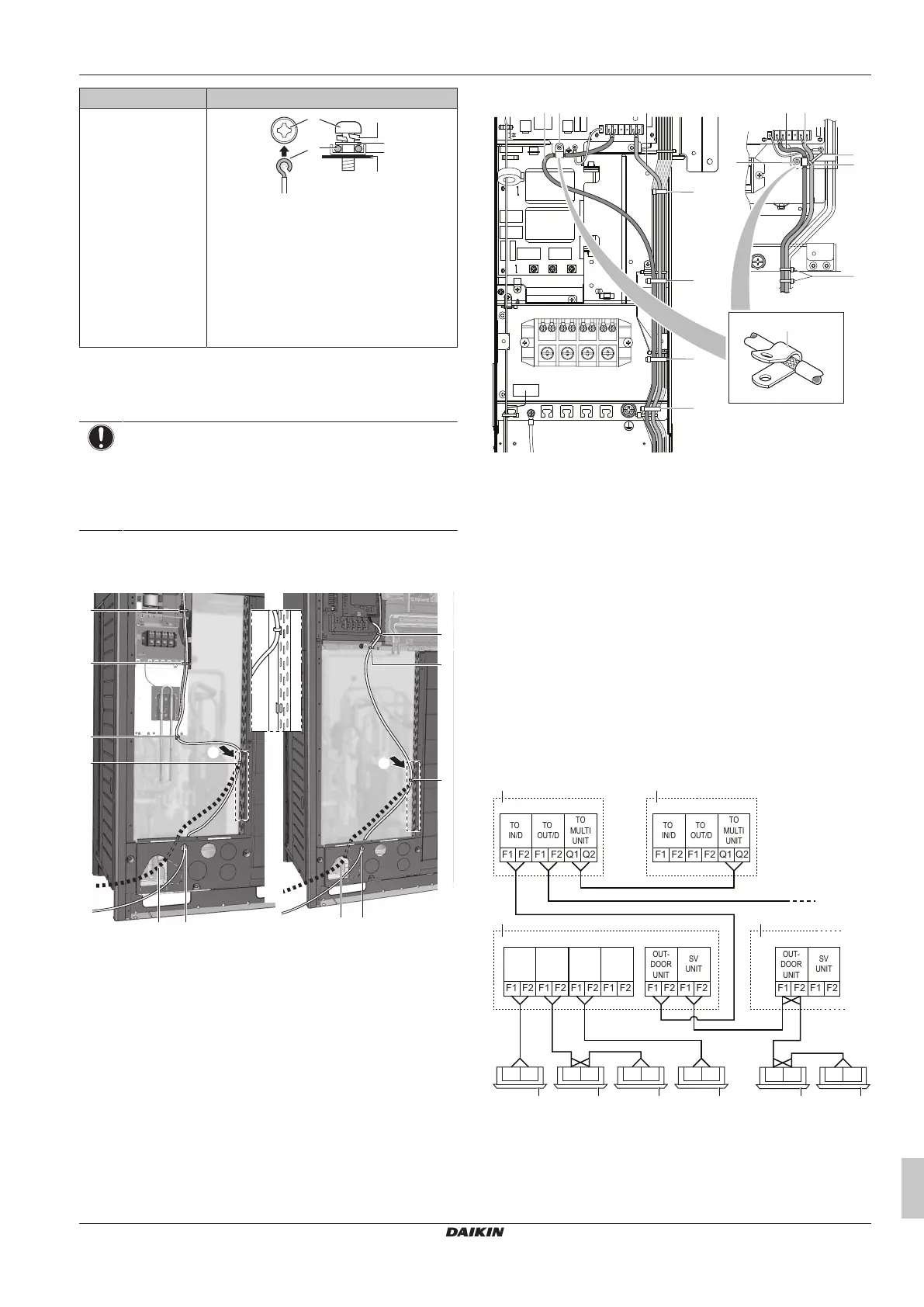
17.4 To route and fix the
interconnection wiring
NOTICE
Sheathed and shielded cables are required for
interconnection wiring between:
▪ Outdoor unit and SV unit
▪ Outdoor unit and indoor units that are directly
connected to the outdoor unit
Interconnection wiring can be routed through the front side only. Fix
it to the upper mounting hole.
b a
A
b a
c
c
c
d
c
d
c
5~12 HP 14~20 HP
A
A
a Interconnection wiring (possibility 1)
(a)
b Interconnection wiring (possibility 2)
(a)
c Tie wrap (fix to factory-mounted low voltage wiring)
d Tie wrap
(a)
Knockout hole has to be removed. Close the hole to
avoid small animals or dirt from entering.
X1A
b
5~12 HP 14~20 HP
e
a e
c
d
d
d
d
d
d
a b
e
a Wiring between the units (indoor-outdoor) (F1/F2 left)
b Internal interconnection wiring (Q1/Q2)
c Plastic bracket
d Tie wrap (field supply)
e P-clamp for cable shield earthing
Fix to the indicated plastic brackets using field supplied clamping
material.
The indoor F1/F2 interconnection wiring MUST be shielded wire.
The shielding is earthed via a metal P-clamp (e) (only at outdoor
unit). Strip the insulation up to the shielding mesh, to provide full
contact of the earth with the shielding.
17.5 To connect the interconnection
wiring
The wiring from the indoor units must be connected to the F1/F2
(In‑Out) terminals on the PCB in the outdoor unit.
See "17.2 Specifications of standard wiring components" [4 40] for
wiring requirements.
INDOOR
UNIT
A
INDOOR
UNIT
B
INDOOR
UNIT
C
INDOOR
UNIT
D
OUT-
DOOR
UNIT
SV
UNIT
F1
F2
F1
F2
F1
F2
F1
F2
F1
F2
F1
F2
TO
IN/D
TO
OUT/D
F1
F2
F1
F2
TO
MULTI
UNIT
Q1
Q2
c
TO
IN/D
TO
OUT/D
F1
F2
F1
F2
Q1
Q2
F1 F2 F1 F2 F1 F2F1 F2
F1 F2 F1 F2
TO
MULTI
UNIT
b
1
a
1
a
2
d d d d e e
OUT-
DOOR
UNIT
SV
UNIT
F1
F2
F1
F2
b
2
a1 Unit A (master outdoor unit)
a2 Unit B (slave outdoor unit)
b1 SV unit 1
b2 SV unit 2
c Outdoor unit/other system interconnection (F1/F2)
d Indoor unit, piping connected via SV unit
e Indoor unit, direct piping connection to outdoor unit
Bekijk gratis de handleiding van Daikin RXYA13A7Y1B, stel vragen en lees de antwoorden op veelvoorkomende problemen, of gebruik onze assistent om sneller informatie in de handleiding te vinden of uitleg te krijgen over specifieke functies.
Productinformatie
Merk | Daikin |
Model | RXYA13A7Y1B |
Categorie | Niet gecategoriseerd |
Taal | Nederlands |
Grootte | 11397 MB |