Daikin RXM71A5V1B handleiding

80 pagina's
PDF beschikbaar

Handleiding

Je bekijkt pagina 73 van 80
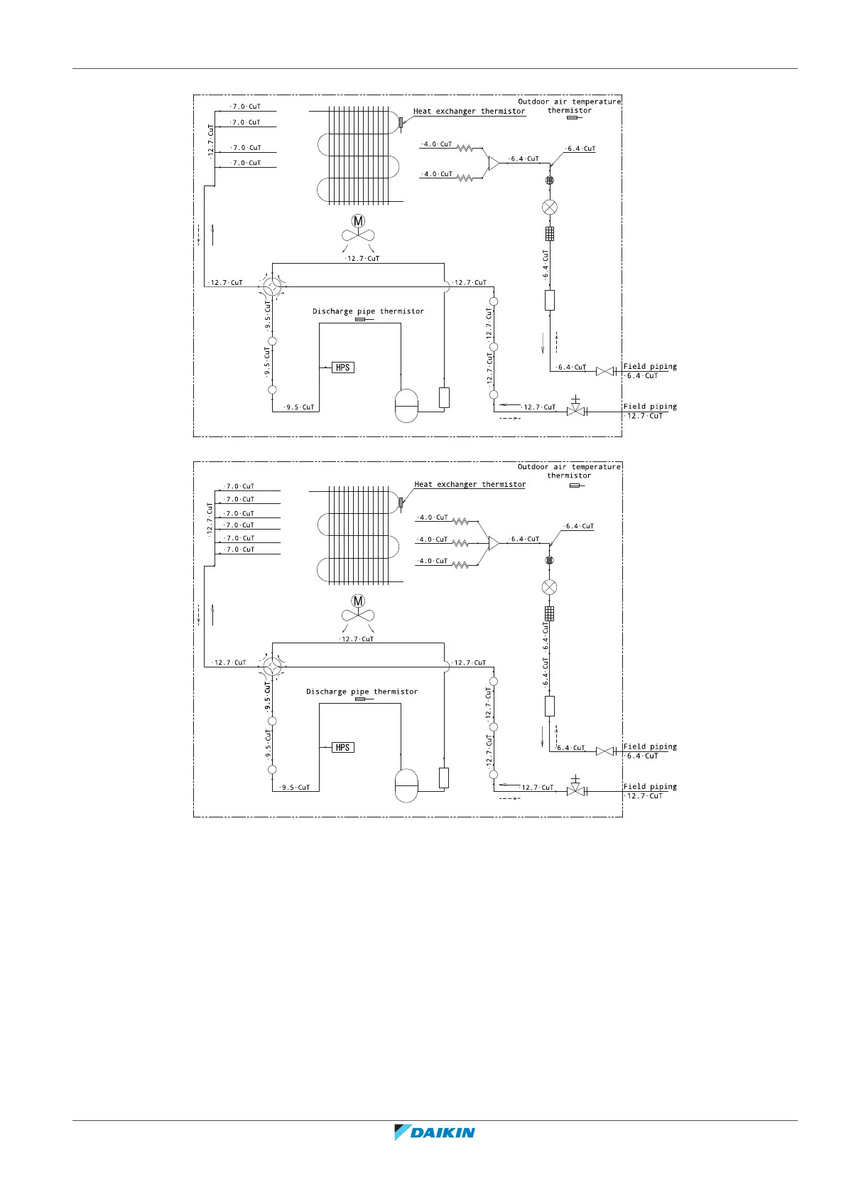
17 | Technical data
Installer reference guide
73
RXA-B8, RXM-A(9), ARXM-A(9), RXP-N9, RXF-D(9), ARXF-A(9), RZAG-B
R32 split series
4P766272-2 – 2024.01
RXP50N, RXF50D, ARXF50A
RXP60+71N, RXF60+71D, ARXF60+71A

Bekijk gratis de handleiding van Daikin RXM71A5V1B, stel vragen en lees de antwoorden op veelvoorkomende problemen, of gebruik onze assistent om sneller informatie in de handleiding te vinden of uitleg te krijgen over specifieke functies.

Productinformatie

MerkDaikin
ModelRXM71A5V1B
CategorieNiet gecategoriseerd
TaalNederlands
Grootte10482 MB