Daikin RXM50A5V1B handleiding

80 pagina's
PDF beschikbaar

Handleiding

Je bekijkt pagina 74 van 80
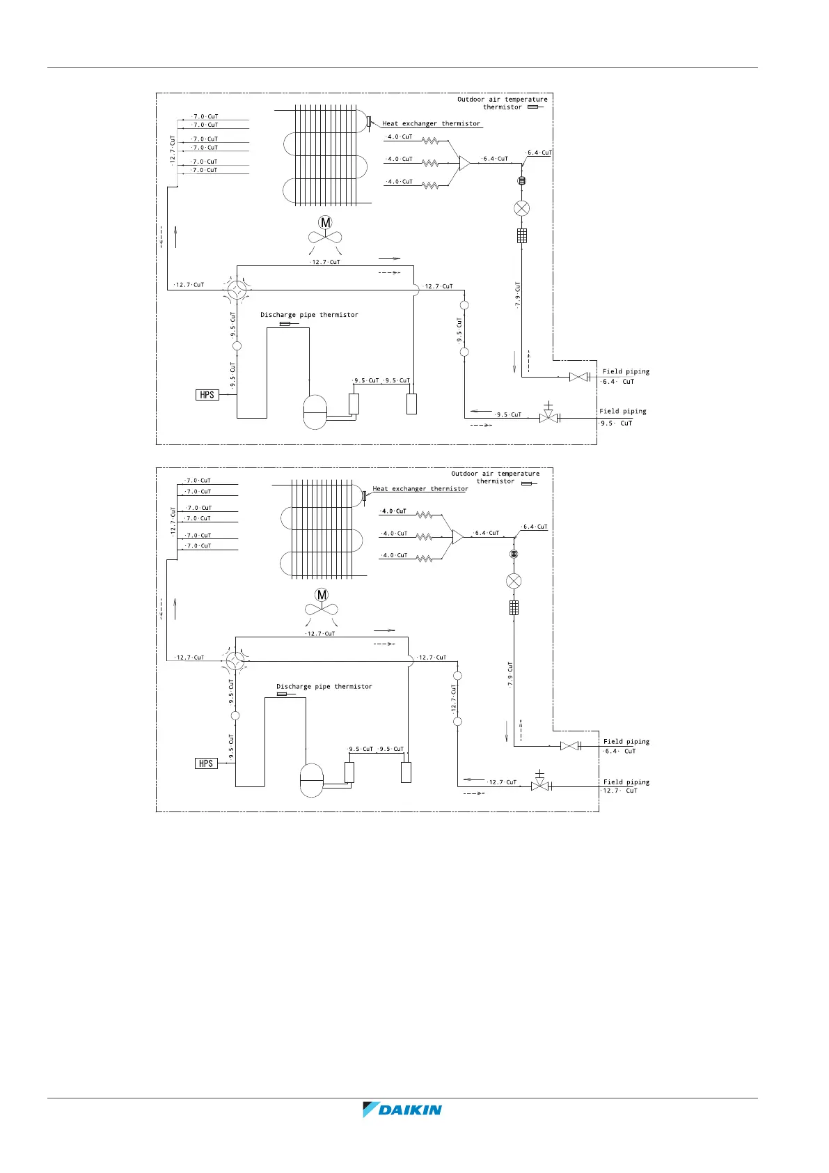
17 | Technical data
Installer reference guide
74
RXA-B8, RXM-A(9), ARXM-A(9), RXP-N9, RXF-D(9), ARXF-A(9), RZAG-B
R32 split series
4P766272-2 – 2024.01
RZAG35B
RZAG50+60B

Bekijk gratis de handleiding van Daikin RXM50A5V1B, stel vragen en lees de antwoorden op veelvoorkomende problemen, of gebruik onze assistent om sneller informatie in de handleiding te vinden of uitleg te krijgen over specifieke functies.

Productinformatie

MerkDaikin
ModelRXM50A5V1B
CategorieNiet gecategoriseerd
TaalNederlands
Grootte10482 MB