Handleiding
Je bekijkt pagina 12 van 60

Installation and operation manual
8
RWEYQ8+10T7Y1B
VRV-W IV System Air Conditioner
4P347465-1C – 2014.01
Water quality
Water containing high levels of foreign materials may cause
corrosion of heat exchanger and piping or scale accumulation.
Use water with specifications according to
"13.4. Water quality"
on page 21.
Cooling tower
Use a closed type cooling tower. (Open type tower cannot be
used.)
Filter
Install the filter at the inlet of the water piping. (If sand, rust
particles, or any other contamination is mixed in the water
circulation system, damage to the plate heat exchanger may be
caused by the corrosion of metal materials and clogging of the
heat exchanger.)
The refrigerant R410A itself is nontoxic, nonflammable and is
safe. If the refrigerant should leak however, its concentration
may exceed the allowable limit depending on room size. Due to
this it could be necessary to take measures against leakage.
Refer to
"19. Caution for refrigerant leaks" on page 42.
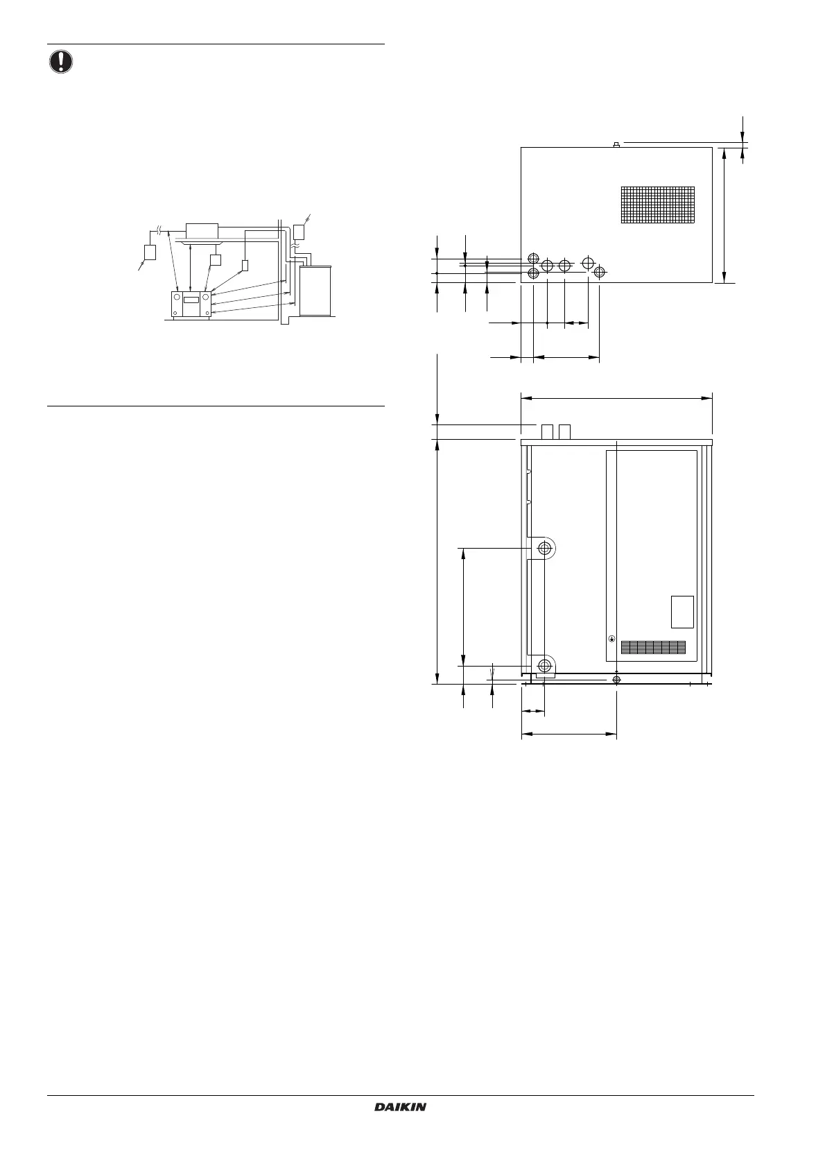
7. Dimensions and service space
7.1. Dimensions of the unit
Dimensions are in <mm>
NOTICE
The equipment described in this manual may cause
electronic noise generated from radio-frequency energy.
The equipment complies to specifications that are
designed to provide reasonable protection against such
interference. However, there is no guarantee that
interference will not occur in a particular installation.
It is therefore recommended to install the equipment and
electric wires keeping proper distances away from stereo
equipment, personal computers, etc.
1 Indoor unit
2 Branch switch, overcurrent breaker
3 Remote controller
4 Cool/heat selector
5 Personal computer or radio
6 Outdoor unit
1500
5
3
1
4
2
2
(mm)
1000
1000
1000
1500
1500
1500
6
780
96
51
390
95
19
107
60
550
20
10
270
43
69
71
1000
78
466
60
38
Bekijk gratis de handleiding van Daikin RWEYQ10T7Y1B, stel vragen en lees de antwoorden op veelvoorkomende problemen, of gebruik onze assistent om sneller informatie in de handleiding te vinden of uitleg te krijgen over specifieke functies.
Productinformatie
Merk | Daikin |
Model | RWEYQ10T7Y1B |
Categorie | Airco |
Taal | Nederlands |
Grootte | 9592 MB |