Handleiding
Je bekijkt pagina 31 van 64

31
6 Installation de la machine
6.1 Signalisations
Le constructeur a prévu l’apposition d’écriteaux d’avertissement et attention avec les signalisations figurant
dans le tableau récapitulatif
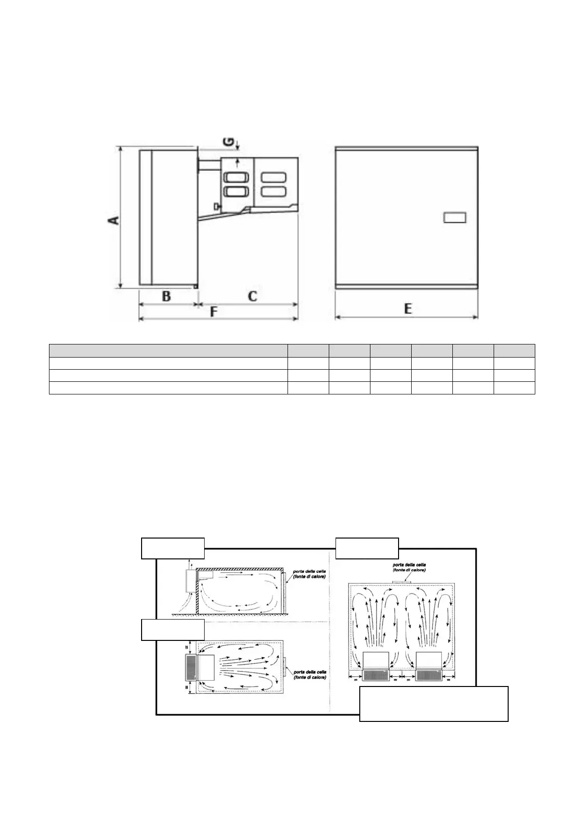
6.2 Encombrement de la machine
Mod. A B C E F G
LMSMD030-050-060-075-100/LMSLN100-120-170 767 310 535 485 845 40
LMSMD102-120-122-130 / LMSLN172-200 767 310 535 785 845 40
LMSMD150-200 / LMSLN300 860 400 670 760 1070 50
6.3 Mise en place de la machine
Pour obtenir un fonctionnement optimal de l'unité nous conseillons de :
A) Placer la machine dans une pièce ayant un bon rechange d'air et éloignée de sources de forte chaleur.
B) Ouvrir la chambre le moins possible.
C) S'assurer que l'unité ait la possibilité d'une bonne aspiration et d'une expulsion de l'air toute aussi
bonne.
D) Brancher au dégagement de l'eau de condensation se trouvant sur la partie inférieure de l'unité, un
tuyau pour l'évacuation de l'eau.
N.B.: Les unités LMS sont équipées d’un système d'évaporation de l'eau de condensation, le tuyau
d’évacuation n’est qu’une précaution en cas d'anomalies de fonctionnement ou d'utilisation
Solution 1 Solution 3
Solution 2
Installation sur una chambre
avec plusieurs unités
Bekijk gratis de handleiding van Daikin LMSLN400AW1, stel vragen en lees de antwoorden op veelvoorkomende problemen, of gebruik onze assistent om sneller informatie in de handleiding te vinden of uitleg te krijgen over specifieke functies.
Productinformatie
Merk | Daikin |
Model | LMSLN400AW1 |
Categorie | Koelkast |
Taal | Nederlands |
Grootte | 9498 MB |