Handleiding
Je bekijkt pagina 33 van 68

33
6 Installation de la machine
6.1 Signalisations
Le constructeur a prévu l’apposition d’écriteaux d’avertissement et attention avec les signalisations figurant
dans le tableau récapitulatif
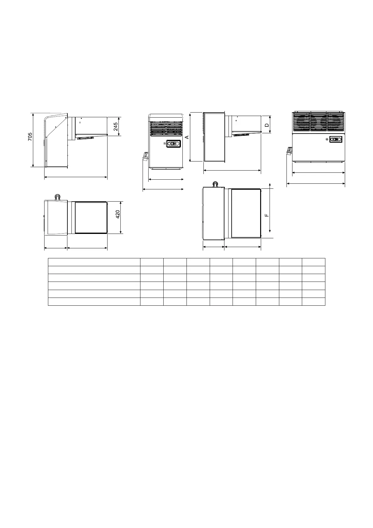
6.2 Encombrement de la machine
825
460
537
520
305
E
G
H
C
B
A B C D E F G H
LMD MF100-120/LF200 695 305 490 245 825 720 754 832
LMD MF230/LF350 800 400 700 385 1100 720 754 832
LMD MF350/LF500 857 440 700 385 1100 1120 1128 1210
LMD MF400-600/LF600-750 857 440 970 380 1410 1560 1598 1698
LMD MF750/LFM000 857 490 1090 460 1580 1600 1638 1738
6.3 Mise en place de la machine
Pour obtenir un fonctionnement optimal de l'unité nous conseillons de:
A) Placer la machine dans une pièce ayant un bon rechange d'air et éloignée de sources
de forte chaleur.
B) Ouvrir la chambre le moins possible.
C) S'assurer que l'unité ait la possibilité d'une bonne aspiration et d'une expulsion de l'air
toute aussi bonne.
D) Brancher au dégagement de l'eau de condensation se trouvant sur la partie inférieure
du condenseur, un tuyau pour l'évacuation de l'eau.
LMD MF
0
7
5/
LF17
0
Ot
h
e
r m
ode
l
s
Bekijk gratis de handleiding van Daikin LMDMD785AW1, stel vragen en lees de antwoorden op veelvoorkomende problemen, of gebruik onze assistent om sneller informatie in de handleiding te vinden of uitleg te krijgen over specifieke functies.
Productinformatie
Merk | Daikin |
Model | LMDMD785AW1 |
Categorie | Koelkast |
Taal | Nederlands |
Grootte | 9472 MB |