Handleiding
Je bekijkt pagina 20 van 68

20
6 Installation
6.1 Plates
The unit is supplied with warning and attention plates as listed in the relevant table.
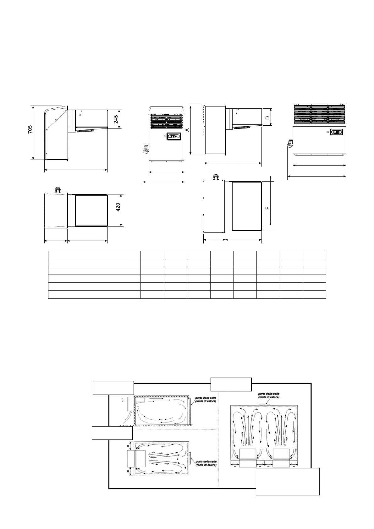
6.2 Dimensions
825
460
537
520
305
E
G
H
C
B
A B C D E F G H
LMD MF100-120/LF200 695 305 490 245 825 720 754 832
LMD MF230/LF350 800 400 700 385 1100 720 754 832
LMD MF350/LF500 857 440 700 385 1100 1120 1128 1210
LMD MF400-600/LF600-750 857 440 970 380 1410 1560 1598 1698
LMD MF750/LFM000 857 490 1090 460 1580 1600 1638 1738
6.3 Location
To obtain optimal operation of the unit act as follows:
A) Place the unit in a well ventilated room, far from heat sources.
B) Limit the number of door openings.
C) Make sure that the unit has good air supply and discharge.
D) Fit a drain line to the defrost water drain connection in the lower part of the
condensing unit.
Solution 1
Solution 3
Solution 2
Installation in a
coldroom with
more than one unit
LMD MF075/LF170 Other models
Bekijk gratis de handleiding van Daikin LMDMD110AV3, stel vragen en lees de antwoorden op veelvoorkomende problemen, of gebruik onze assistent om sneller informatie in de handleiding te vinden of uitleg te krijgen over specifieke functies.
Productinformatie
Merk | Daikin |
Model | LMDMD110AV3 |
Categorie | Koelkast |
Taal | Nederlands |
Grootte | 9472 MB |