Handleiding
Je bekijkt pagina 34 van 68

34
6.4 Espaces libres à respecter
Dans le but de permettre un usage correct de la machine et un entretien aisé de celle-ci, dans des
conditions de sécurité, l’installation doit être effectuée de façon à respecter les espaces libres minimums pour
l’ouverture de la machine.
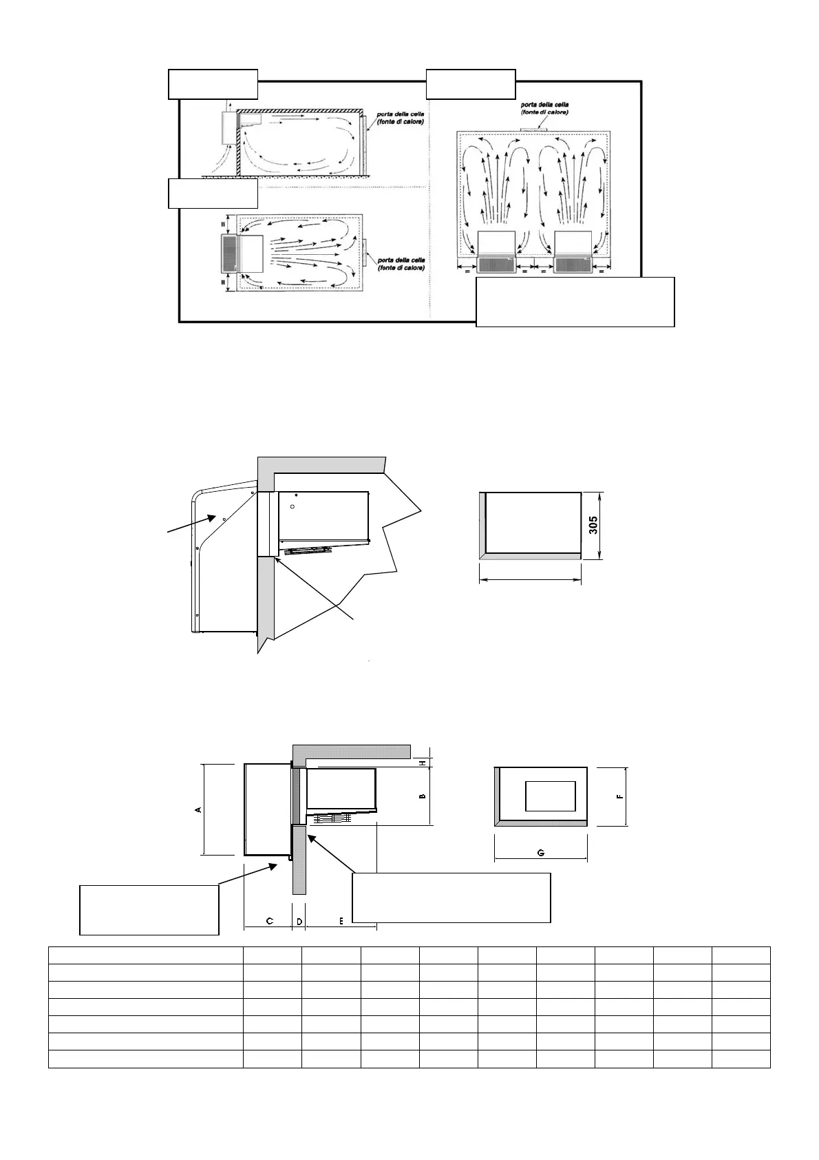
6.5 Montage
Faire un trou de dimensions appropriées sur la paroi de la chambre froide, voir figure.
-Iniettare silicone su tutto il perimetro del tampone.
Sul lato superiore eseguire l’operazione prima del posizionamento.
-Inject silicone all around the panel opening.
Apply silicone on the upper side before positioning the unit.
-Injecter de la silicone sur tout le périmètre du tampon.
Sur la partie supérieure injecter avant de fixer l’Uniblock.
-Silikon auf den ganzen Öffnungsumfang einspritzen.
Bevor der Uniblock eingebaut wird, dieses Verfahren auf der Oberseite ausführen.
-Inyectar silicona sobre todo el perimetro del agujero.
Sobre la parte superior se coloca antes de situar el Uniblock.
425
-Foro
-Hole
-Trou
-Loch
-Agujero
A B C D E F G H I
LMD MF075/LF170 705 300 305 100 420 305 425 100 10
LMD MF100-120/LF200 695 300 305 100 420 305 725 100 10
LMD MF230/LF350 800 470 400 120 580 475 725 100 10
LMD MF350/LF500 857 470 440 120 580 480 1130 100 18
LMD MF400-600/LF600-750 857 500 440 120 850 510 1600 100 22
LMD MF750/LFM000 857 570 490 120 970 580 1640 100 22
Solution 1 Solution 3
Solution 2
Installation sur une chambre
avec plusieurs unités
A
Evacuation des
condensats D (I)
T
rou
Injecter de la silicone sur
tout le périmètre du tampon.
Bekijk gratis de handleiding van Daikin LMDMD080AV3, stel vragen en lees de antwoorden op veelvoorkomende problemen, of gebruik onze assistent om sneller informatie in de handleiding te vinden of uitleg te krijgen over specifieke functies.
Productinformatie
Merk | Daikin |
Model | LMDMD080AV3 |
Categorie | Koelkast |
Taal | Nederlands |
Grootte | 9472 MB |