Handleiding
Je bekijkt pagina 59 van 68

59
6 Montage
6.1 Platen
Er staan waarschuwings- en aandachtsplaten op de unit, zoals opgelijst in de relevante tabel.
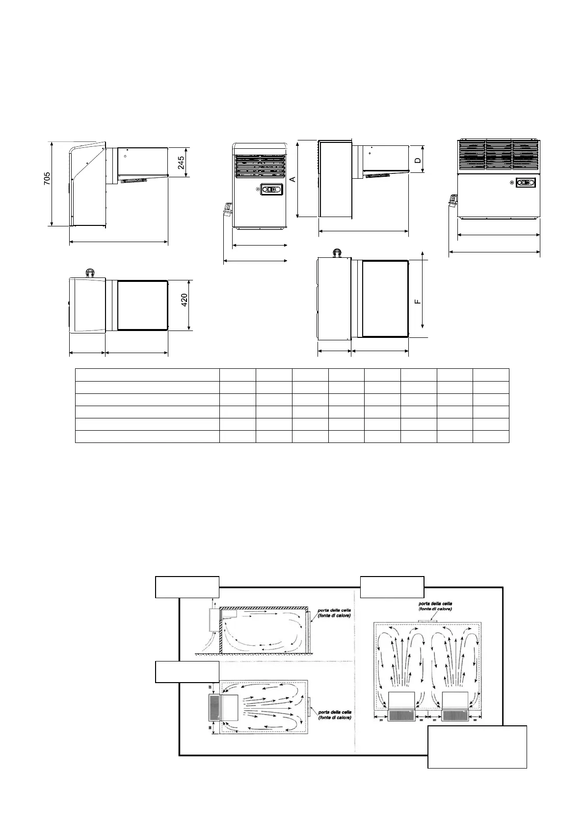
6.2 Afmetingen
825
460
537
520
305
E
G
H
C
B
A B C D E F G H
LMD MF100-120/LF200 695 305 490 245 825 720 754 832
LMD MF230/LF350 800 400 700 385 1100 720 754 832
LMD MF350/LF500 857 440 700 385 1100 1120 1128 1210
LMD MF400-600/LF600-750 857 440 970 380 1410 1560 1598 1698
LMD MF750/LFM000 857 490 1090 460 1580 1600 1638 1738
6.3 Locatie
Voer de volgende handelingen uit voor een optimale werking van de unit:
A) Plaats de unit in een goed geventileerde ruimte, ver van warmtebronnen.
B) Beperk het aantal keren dat de deur wordt geopend.
C) Zorg dat de unit voldoende luchttoevoer en -afvoer heeft.
D) Plaats een afvoerleiding op de afvoeraansluiting voor het ontdooide water in het
onderste gedeelte van de unit.
Opmerking: LMS-units verdampen het ontdooide water automatisch; de afvoer is er
slechts in geval van problemen.
Oplossing 1 Oplossing 3
Oplossing 2
Plaatsing in een
koelruimte met
meer dan één unit
LMD MF075/LF170
Other models
Bekijk gratis de handleiding van Daikin LMDMD070AV3, stel vragen en lees de antwoorden op veelvoorkomende problemen, of gebruik onze assistent om sneller informatie in de handleiding te vinden of uitleg te krijgen over specifieke functies.
Productinformatie
| Merk | Daikin |
| Model | LMDMD070AV3 |
| Categorie | Koelkast |
| Taal | Nederlands |
| Grootte | 9472 MB |







