Daikin FWN06AATN6V3 handleiding
Handleiding
Je bekijkt pagina 5 van 56

15 D
15
C
40
32208
280
67 173
40
280
17
D17
C
125
263112
598
24 B24
A
101
166
280
28
100
177
319
598
49
164
230
312
363
409
481
177
319
598
28
69
197
49
164
230
409
400
444
312
100
280
29
227
227
17
17
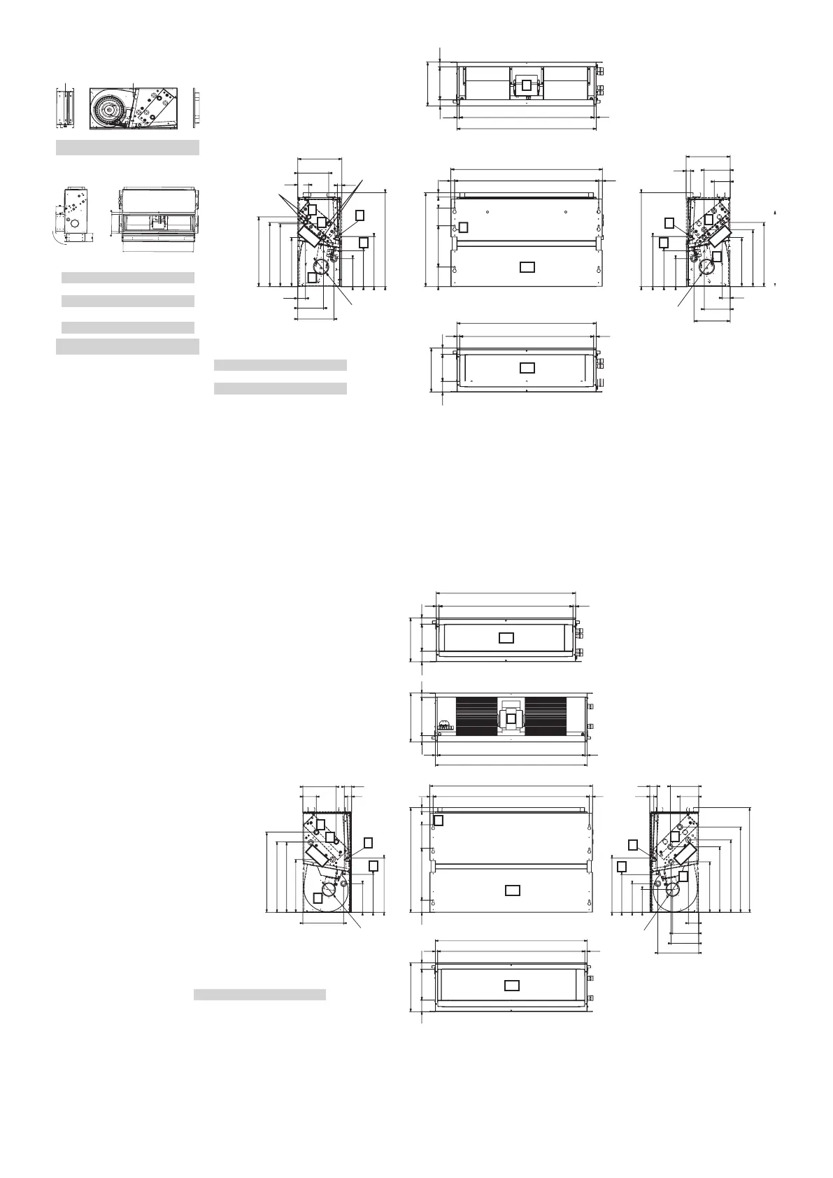
FWN04 + 05
FWN06 + 07
FWN08+10
D
646
856
1066
H
223
223
FWN 12 1066 296
223
FWN 16+18 1276 296
FWN04~18
A
FWN04 + 05
FWN06 + 07
FWN08+10
754
964
1174
B
707
917
11 27
C
676
886
1096
D
646
856
1066
2
1
2 1
5
6B
6A
D
H
AA
AB
2
3
4
4
4 DF
7
2
3
4
7
4 DF
1
OUT
IN
67 173
40
280
17
D17
C
45 32276
353
C
84 22248
353
88 375 170
42B42
A
165
208
188
294
365
473
523
617
74
198
204
135
100
392
29
208
392
274
53
29
241
98
579
506
382
510
17
273
53
294
757
1717
C
D
757
29
51D51
100
17
FWN12~18
A
FWN12
FWN16+18
1174
1384
B
11 27
1337
C
1096
1306
D
1066
1276
6A
5
6B
6A
2
3
4
4
4 DF
7
1
2
3
4
4 DF
7
Bekijk gratis de handleiding van Daikin FWN06AATN6V3, stel vragen en lees de antwoorden op veelvoorkomende problemen, of gebruik onze assistent om sneller informatie in de handleiding te vinden of uitleg te krijgen over specifieke functies.
Productinformatie
| Merk | Daikin |
| Model | FWN06AATN6V3 |
| Categorie | Niet gecategoriseerd |
| Taal | Nederlands |
| Grootte | 8475 MB |







