Handleiding
Je bekijkt pagina 31 van 45

English 29
PRECAUTIONS
The preparation of all pipes (connecting pipes and drainage pipes) and cables (connecting lines of wired 1.
controller, indoor unit and outdoor unit) must be ready before the installation, so as to achieve smooth
installation.
Drill an opening on the ceiling. Maybe it is required to support the ceiling to ensure the evenness of it and 2.
avoid the vibration of it. Consult the user or a construction company for details.
In case the strength of ceiling is not enough, use angle iron sections to set up a beam support. Place the 3.
unit at the beam and fi x it.
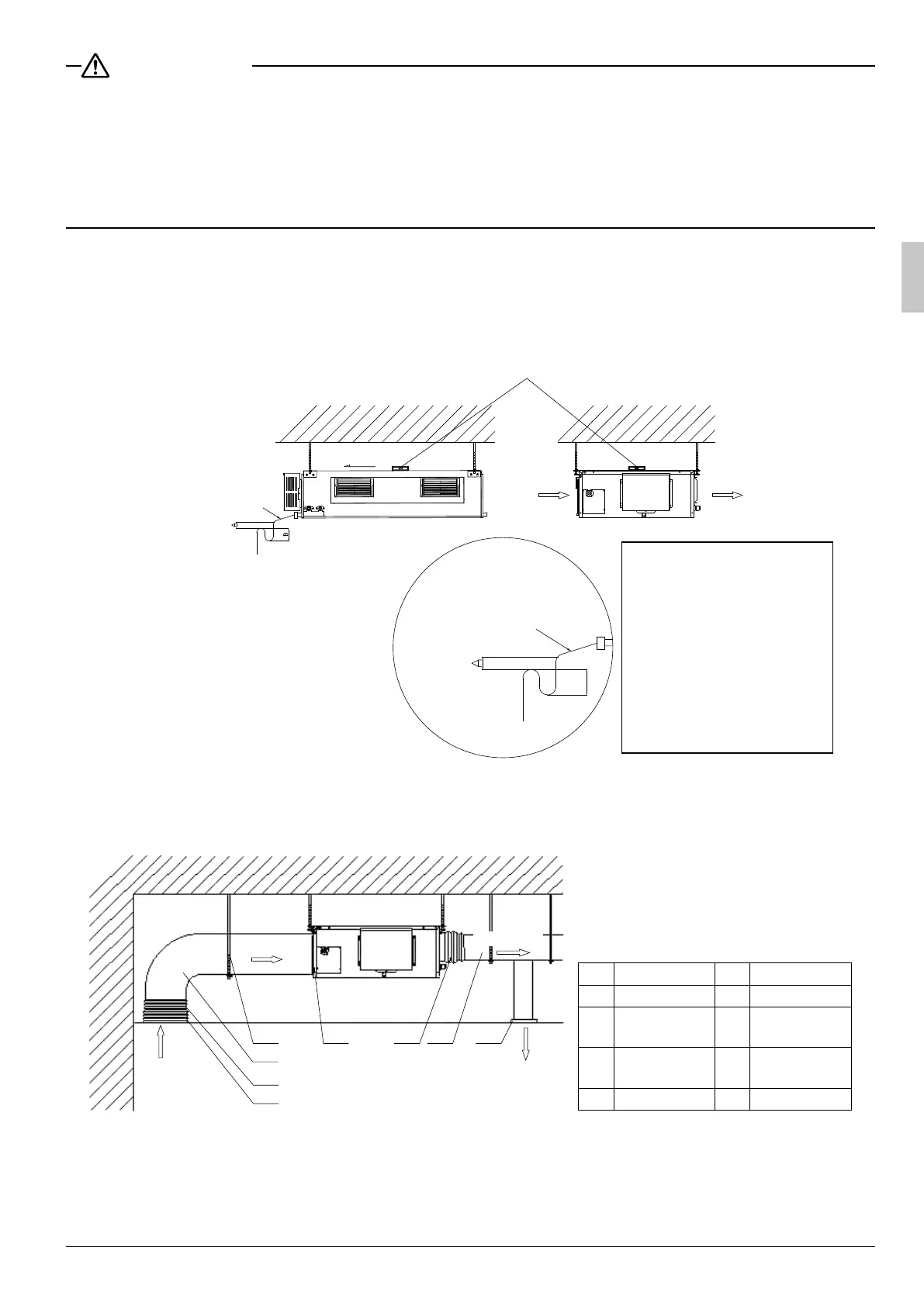
8.5 Level Check of the Indoor Unit
After the indoor unit is installed, it is required to check the level of the whole unit. The unit must be placed
horizontally, but the condensate pipe shall be installed obliquely, so as to facilitate the drainage of condensate.
Air Supply
B
Air Intake
Condensate Drainpipe
Level Instrument
Condensate Drainpipe
Enlarged View
i
As the inside of the unit is in
the negative pressure
status, it is required to set
up a backwater elbow. The
requirements is:
A=BqP/10+20(mm)
P is the absolute pressure
inside the unit. The unit of
the pressure is Pa.
8.8Fig.
8.6 Installation of Rectangular Air Pipe
Air Intake
Ceiling Mount
Air Intake
1
2
Air Supply
Air Supply
3
4
5367
No. Name No. Name
1 Hook 5 Filter
2
Air Intake
Pipe
6
Main Air
Supply Pipe
3
Canvas Air
Pipe
7
Air Supply
Outlet
4 Air Intake
8.9Fig.
01_EN_EM09A058A.indd 2901_EN_EM09A058A.indd 29 5/13/2010 11:43:34 AM5/13/2010 11:43:34 AM
Bekijk gratis de handleiding van Daikin FDM-PV1, stel vragen en lees de antwoorden op veelvoorkomende problemen, of gebruik onze assistent om sneller informatie in de handleiding te vinden of uitleg te krijgen over specifieke functies.
Productinformatie
Merk | Daikin |
Model | FDM-PV1 |
Categorie | Airco |
Taal | Nederlands |
Grootte | 6537 MB |