Daikin EMRQ14ABY1 handleiding
Handleiding
Je bekijkt pagina 24 van 36

Installation manual
21
EMRQ8~16ABY1
Daikin Altherma outdoor unit
4P501819-1 – 2017.08
Power supply routing
The power supply can be routed from the front, left and right side.
1 Left and right side. The plastic conduit hole on the left and right
side can be opened as follows:
2 Front side.
In order to route the power supply from the front side, the
available knock-out holes can be used:
Precautions when knocking out knock-out holes
■ To punch a knock-out hole, hit on it with a hammer.
■ After knocking out the holes, p24-we recommend removing any burrs
and paint the edges and areas around the holes using repair
paint to prevent rusting.
■ When passing electrical wiring through the knock-out holes,
prevent damage to the wires by wrapping the wiring with
protective tape, putting the wires through field supplied
protective wire conduits at that location, or install suitable field
supplied wire nipples or rubber bushings into the knock-out
holes.
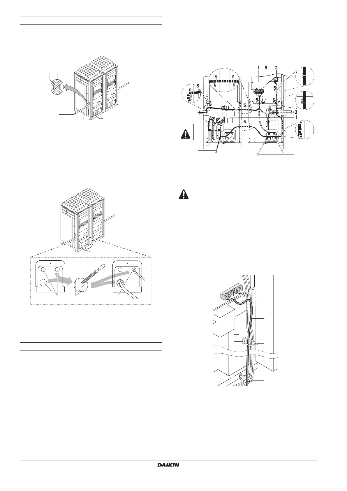
12.6. Connection
This chapter gives an explanation how to route and connect the
wiring within the unit.
1 Routing inside the unit
For routing of the wiring inside the unit, please follow the figure
below:
2 Connection of wiring to terminals.
2.1 Transmission wiring
Care should be taken for connecting the wires to the terminal block.
1 Power supply inside a conduit
2 Conduit
3 Power supply
4 Cut off the shaded zones before usage
5 Through hole cover
1 Knock-out hole
2 Burr
3 If there are any possibilities that small animals enter the
system through the knock-out holes, plug the holes with
packing materials (to be prepared on-site).
1
2
3
45
2
3
1
1 Power supply
2 Transmission wiring
3 Routing out power supply through the right side of the unit.
4 Secure a clearance of 25 mm or more between power supply and
transmission wiring.
5 Clamp the wiring with field supplied clamps.
6 Routing out transmission wiring through the front of the unit.
7 Routing out the power supply through the front of the unit.
8 Routing out the power supply through the left side of the unit.
9 Earth wire from power supply.
10 When wiring, pay attention not to detach the acoustic insulators
from the compressor.
1 Fix to the indicated plastic brackets using field supplied clamping
material.
2 Wiring between the units (Indoor - outdoor) (F1+F2 left)
3 Internal transmission wiring (Q1+Q2)
4 Plastic bracket
5 Field supplied clamps
4
6
6
7
0
8
6
6
5
5
6
6
6
5
6
6
5
6
6
6
6
5
6
6
5
6
6
6
6
5
6
6
5
6
6
6
6
5
6
6
5
6
5
6
5
5
5
5
5
5
5
6
5
6
6
5
6
6
6
6
5
5
5
5
5
6
5
6
6
5
6
6
6
5
6
6
5
65
3
2
1
5
5
4
4
4PEN501819-1.book Page 21 Wednesday, September 13, 2017 12:52 PM
Bekijk gratis de handleiding van Daikin EMRQ14ABY1, stel vragen en lees de antwoorden op veelvoorkomende problemen, of gebruik onze assistent om sneller informatie in de handleiding te vinden of uitleg te krijgen over specifieke functies.
Productinformatie
| Merk | Daikin |
| Model | EMRQ14ABY1 |
| Categorie | Niet gecategoriseerd |
| Taal | Nederlands |
| Grootte | 6412 MB |







