Daikin EHOBG12ABV1 handleiding
Handleiding
Je bekijkt pagina 21 van 316

Daikin Europe NV
22
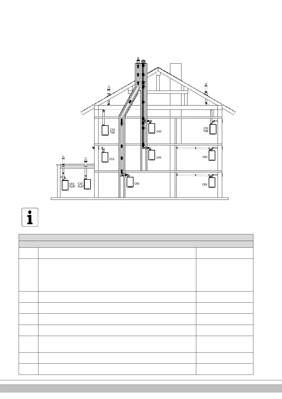
5.6 Outlet systems
Please note that not all flue gas configurations described below are permitted in all
countries. Therefore observe local regulations prior to installation.
The drawings above are a sample and can differ on details.
Explanation
flue systems
Category in accordance to CE
B23
A flue that evacuates the products of combustion to the
outside of
the room containing the appliance. The combustion air is drawn directly from the room.
Make sure the air inlet is open
and complies to the demands
B33
A flue system which is connected to a common duct system. This common duct system
consists of a single natural draught flue. All pressurized parts of the appliance containing
products of combustion are completely enclosed by parts of the appliance supplying
combustion air. Combustion air is drawn into the appliance from the room by means of a
concentric duct, which encloses the flue. The air enters through defined orifices situated
in the surface of the duct.
Make sure the air inlet is open
and complies to the demands
C13
Horizontal flue system. Discharge in the outside wall.
Inlet opening for the air supply is in the same pressure zone as the discharge
For example : a wall terminal
through the facede.
C33
Vertical flue system. Flue gas discharge via the roof.
Inlet opening for the air supply is in the same pressure zone as the discharge
For example : a vertical roof
terminal.
C43
Joint air supply and flue gas discharge duct (CLV system)
Twin-pipe or concentric
C53
Separate air supply and separate flue gas discharge duct.
Discharging into different pressure zones
C63
Free in the ma
rket available flue material with CE approval
Do not mix flue materials from
different suppliers.
C83
Joint air supply and flue gas discharge duct (CLV system)
Discharging into different pressure zones
Only as twin pipe system
C93
Air supply and flue gas discharge duct in shaft or ducted: Concentric. Air supply from
existing duct. Flue gas discharge via the roof. Air supply and flue gas discharge are in
Concentric flue system
between the boiler and the
Bekijk gratis de handleiding van Daikin EHOBG12ABV1, stel vragen en lees de antwoorden op veelvoorkomende problemen, of gebruik onze assistent om sneller informatie in de handleiding te vinden of uitleg te krijgen over specifieke functies.
Productinformatie
| Merk | Daikin |
| Model | EHOBG12ABV1 |
| Categorie | Niet gecategoriseerd |
| Taal | Nederlands |
| Grootte | 45154 MB |







