Curtis 1356P handleiding
Handleiding
Je bekijkt pagina 8 van 58

4
Curtis 1356/1356P CAN Expansion Module Manual, Rev. A
2 — INSTALLATION & WIRING
2
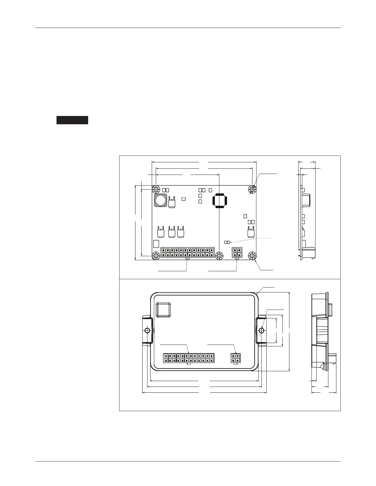
Fig. 2 Mounting
dimensions, Curtis 1356
and 1356P expansion
modules.
Dimensions in millimeters.
INSTALLATION AND WIRING
MOUNTING THE MODULE
e outline and mounting hole dimensions for the modules are shown in Fig. 2.
e 1356P module should be mounted using two M4 screws.
e 1356 module requires the OEM to develop an appropriate case to
provide environmental protection. Mounting for the 1356 depends on the case.
Care should be taken to prevent contaminating the PCBA (1356) or
connector (1356P). In order to prevent external corrosion and leakage paths
from developing, the mounting location should be carefully chosen to keep
the module as clean and dry as possible.
+
CAUTION
100.0
92.4
3.8
3.8
62.4
70.0
60.7
5X Ø3.50
4XR3
J1 CONNECTOR
J2 CONNECTOR
1 12
13 24
1 2
43
14.4 ±1.5
1.60
16.3
STATUS
LEDs
110.0
116.0
126.0
2x Ø4.50
4xR8
25.0
32.0
80.0
J1 CONNECTOR
J2 CONNECTOR
121
2413
1
3
2
4
5.0
25.0
17.0
1356
1356P
Bekijk gratis de handleiding van Curtis 1356P, stel vragen en lees de antwoorden op veelvoorkomende problemen, of gebruik onze assistent om sneller informatie in de handleiding te vinden of uitleg te krijgen over specifieke functies.
Productinformatie
| Merk | Curtis |
| Model | 1356P |
| Categorie | Niet gecategoriseerd |
| Taal | Nederlands |
| Grootte | 7745 MB |







