Curtis 1356P handleiding
Handleiding
Je bekijkt pagina 12 van 58

8
Curtis 1356/1356P CAN Expansion Module Manual, Rev. A
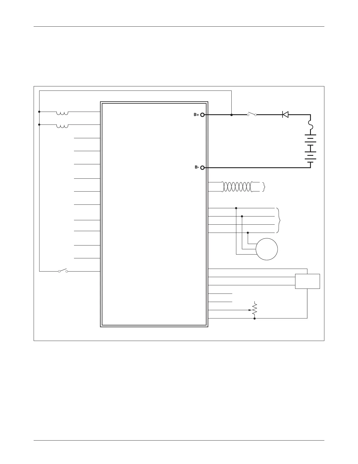
Fig. 3 Basic wiring diagram, Curtis 1356 /1356P CAN expansion module.
2 — INSTALLATION & WIRING: Standard Wiring Diagram
WIRING: BASIC CONFIGURATION
A basic wiring diagram is shown in Fig. 3, and described below. e diagram
shows the standard power and battery connections, as well as some basic uses
for the inputs and outputs.
Power Connection
e battery is connected to the module’s B+ pin though a fuse, a diode, and a
keyswitch. e fuse protects the wiring in the event of a short or failure. e
return path of the coils is also brought back to the B+ pin to utilize the yback
diodes connected inside the module between B+ and each driver output.
e keyswitch is used to turn on the system. When the keyswitch is closed,
B+ goes high and the 1356 /1356P’s power supply brings up the module.
J1-11
J1-23
J1-13
J1-1
J1-2
J1-14
J1-3
J1-15
J1-4
J1-16
J1-5
J1-17
J1-6
J1-12
KEYSWITCH
SWITCH
BATTERY
(12–80V)
REVERSE
POLARITY
PROTECTION
PROPORTIONAL
VALVE
CONTACTOR
CAN PORT
1356 / 1356P
ENCODER A
ENCODER B
ANALOG INPUT 1
ANALOG INPUT 2
ANALOG INPUT 3
OUTPUT 1
OUTPUT 2
INPUT 3
INPUT 4
INPUT 5
INPUT 6
INPUT 7
INPUT 8
INPUT 9
CAN H
CAN L
+5V
ENCODER
J1-10
J1-22
J1-20
J1-9
J1-21
0–15V IN
RESISTIVE THROTTLE,
RTD, etc.
J2-4
J2-3
J2-1
SERIAL PORT
(4-pin Molex)
4
3
1
2
840
DISPLAY
8
6
5
+12V
RX
TX
J1-18
J1-7
J1-19
J1-8
INPUT 10
INPUT 11
INPUT 12
INPUT 13
J2-2
I/O GND
I/O GND
J1-24
Bekijk gratis de handleiding van Curtis 1356P, stel vragen en lees de antwoorden op veelvoorkomende problemen, of gebruik onze assistent om sneller informatie in de handleiding te vinden of uitleg te krijgen over specifieke functies.
Productinformatie
Merk | Curtis |
Model | 1356P |
Categorie | Niet gecategoriseerd |
Taal | Nederlands |
Grootte | 7745 MB |