Curtis 1221M handleiding
Handleiding
Je bekijkt pagina 18 van 40

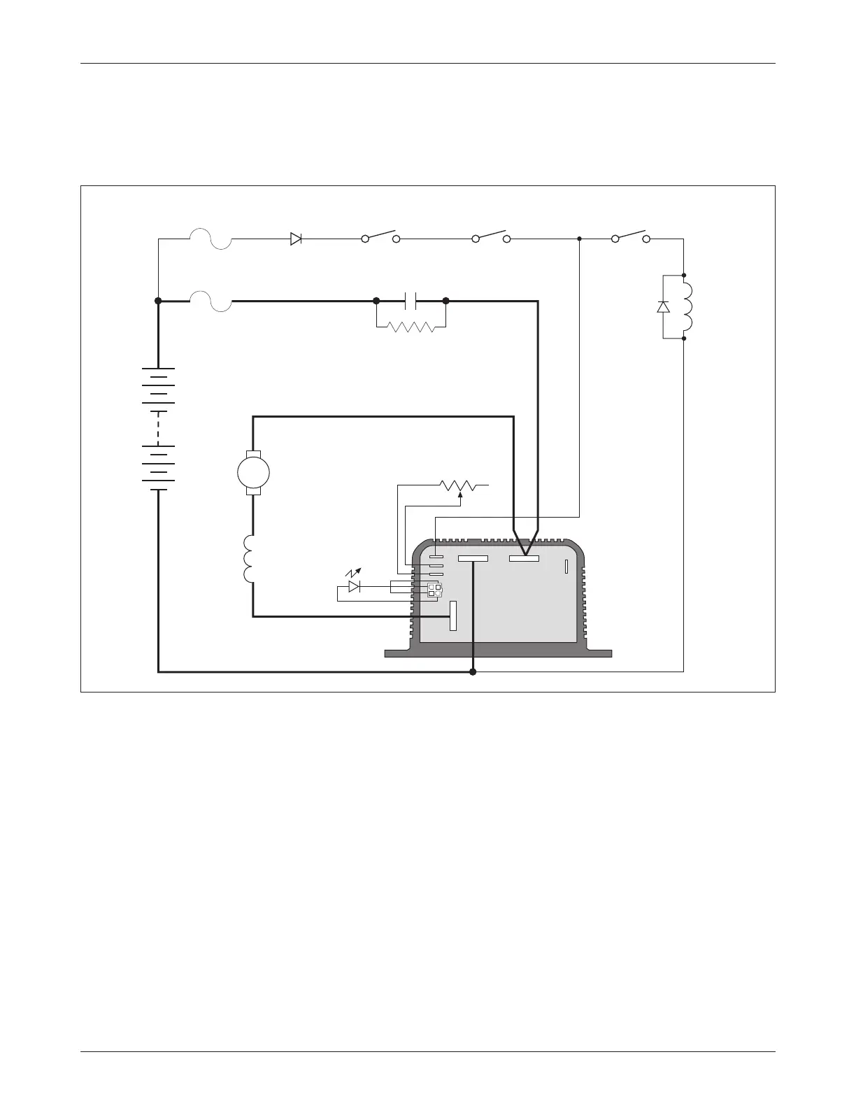
Basic Wiring Conguration for Pump Applications
The 1204M-6302 controller has only three busbars; it is appropriate for use
with pump motors, wired as shown in Figure 11.
2 — INSTALLATION & WIRING: Throttle Wiring; Pump Applications
Fig. 11 Basic wiring diagram, Curtis 1204M-6302 motor controller—for pump applications.
STATUS
LED
MOTOR
FIELD
A2
5k� THROTTLE
PRECHARGE RESISTOR
(250 � , 5 W)
MOTOR
ARMATURE
MAIN
MAIN
KEYSWITCH INTERLOCKS
POLARITY
PROTECTION
DIODE
CONTROL WIRING
FUSE
POWER WIRING
FUSE
S1
+
–
ENABLE
A1
S2
M–
B– B+
J1
J2
J3
J4
J5
14
Curtis 1204M/1205M/1209M/1221M Manual
Bekijk gratis de handleiding van Curtis 1221M, stel vragen en lees de antwoorden op veelvoorkomende problemen, of gebruik onze assistent om sneller informatie in de handleiding te vinden of uitleg te krijgen over specifieke functies.
Productinformatie
| Merk | Curtis |
| Model | 1221M |
| Categorie | Niet gecategoriseerd |
| Taal | Nederlands |
| Grootte | 4663 MB |







