Curtis 1205M handleiding
Handleiding
Je bekijkt pagina 14 van 40

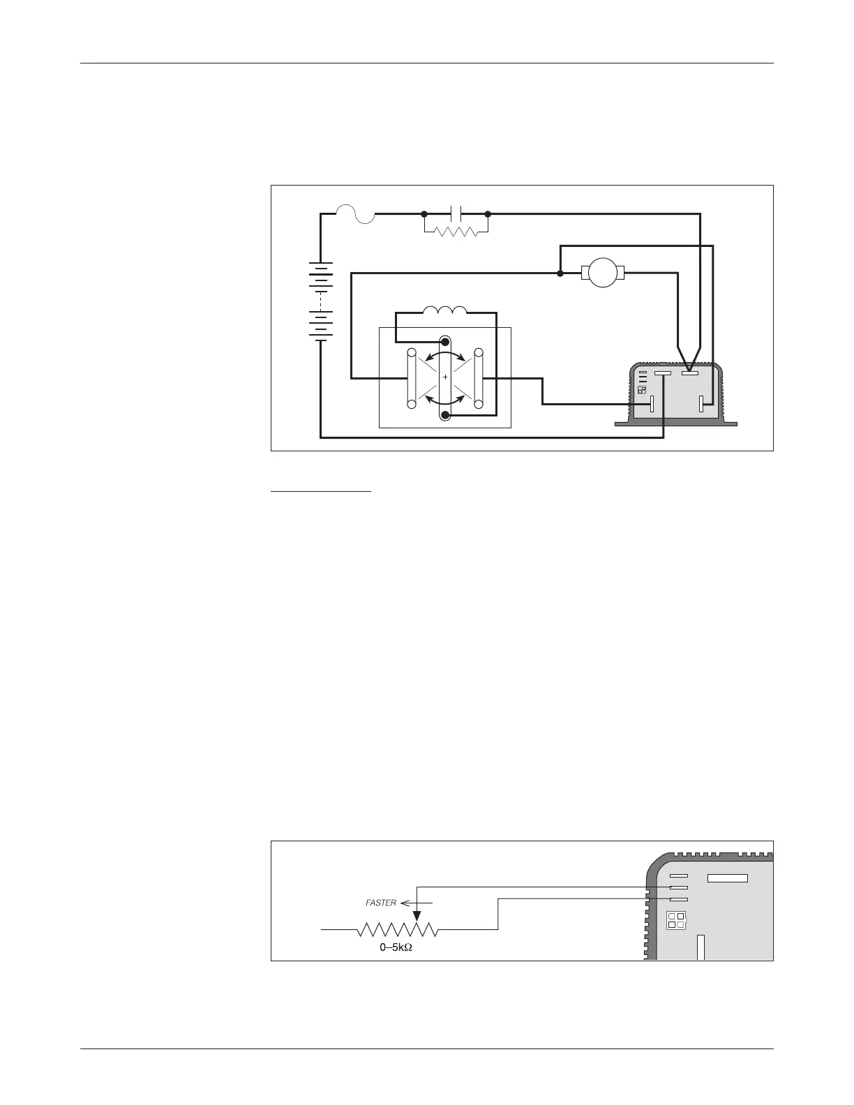
Wiring for mechanical reversing switch (golf car type)
As shown in Figure 7, this type of switch mechanically interchanges the two
motor field cables by rotating a movable contact bar. The configuration shown
is typical; many variations are in use.
Throttle Wiring
Ten throttle types can be used with these controllers:
Type 0 2-wire potentiometer, 0–5kΩ
Type 1 2-wire potentiometer, 5kΩ–0
Type 2 single-ended 0–5V input
Type 3 2-wire potentiometer, 4.6kΩ–0
Type 4 2-wire potentiometer, 5.5kΩ–0
Type 5 2-wire potentiometer, 1kΩ–0
Type 6 ITS input
Type 7 single-ended 6.3–10.6 V input
Type 8 single-ended 6–12 V input
Type 9 single-ended 3-wire potentiometer, 0–5kΩ
Throttle Type 0
Wiring for Type 0 throttles is simple: just connect the two wires to the J2 and J3
push-on terminals; it doesn’t matter which wire goes on which terminal. With
Type 0 throttles, resistance increases as the applied throttle is increased.
Fig. 7 Wiring for reversing
with a mechanical F/R
switch arm.
A2
M–
B– B+
+
–
MAIN
PRECHARGE RESISTOR
(250 �, 5 W)
FUSE
S2
S1
A2
A1
MOTOR ARMATURE
MOTOR FIELD
Mechanical potboxes and footpedals are Type 0 throttles. It doesn’t matter which
wire goes on which terminal, and the wires can be extended as required.
Fig. 8 Wiring for Type 0
throttles.
J1
J2
J3
2 — INSTALLATION & WIRING: Throttle Wiring
10
Curtis 1204M/1205M/1209M/1221M Manual
Bekijk gratis de handleiding van Curtis 1205M, stel vragen en lees de antwoorden op veelvoorkomende problemen, of gebruik onze assistent om sneller informatie in de handleiding te vinden of uitleg te krijgen over specifieke functies.
Productinformatie
| Merk | Curtis |
| Model | 1205M |
| Categorie | Niet gecategoriseerd |
| Taal | Nederlands |
| Grootte | 4663 MB |







