Curtis 1205M handleiding
Handleiding
Je bekijkt pagina 11 van 40

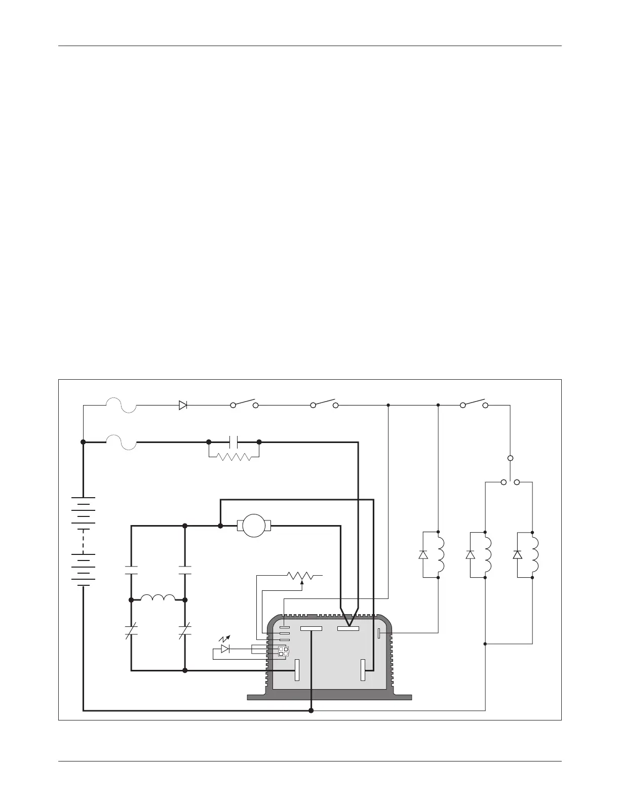
Fig. 4 Basic wiring diagram, Curtis 1204M/05M/09M/21M with active main contactor.
2 — INSTALLATION & WIRING: Standard Wiring Diagrams
CONTROLLER WIRING: BASIC CONFIGURATIONS
Two basic wiring diagrams are shown; they are identical except for the wiring
at terminal J5. In the configuration in Figure 4, the main contactor driver is
active. In the configuration in Figure 5, the reverse input is active.
Wiring with active main contactor
For this option, set the Rev Input / Main Driver parameter = 2 (see
page 24), and wire the controller as shown in Figure 4.
J5 is used to drive the main contactor, which will open the battery
power in the event of a severe fault; this will help to meet safety regula-
tions. If you wish to limit reverse speed, you will need to add a speed
reduction resistor.
Wiring with active reverse input
For this option, set the Rev Input / Main Driver parameter = 1 (see
page 24), and wire the controller as shown in Figure 5.
J5 is used as the input when the reverse direction is selected. This
simplifies the wiring for limiting reverse speed; the speed in reverse is
limited by the setting of the Rev Speed parameter. However, with this
configuration the main contactor does not open the battery power in
the event of a severe fault.
STATUS
LED
MOTOR
FIELD
A2 A1
5kΩ THROTTLE
PRECHARGE RESISTOR
MOTOR
ARMATURE
FORWARD
REVERSE
MAIN
FR
MAIN
KEYSWITCH INTERLOCKS
POLARITY
PROTECTION
DIODE
CONTROL WIRING
FUSE
POWER WIRING
FUSE
S2S1
F
R
F
R
+
–
PEDAL
MICROSWITCH
Resistor Values
12V: 33Ω, 5W
24V: 100Ω, 10W
36–48V: 250Ω,10W
60–72V: 250Ω,20W
A2
M–
B– B+
J1
J2
J3
J4
J5
Curtis 1204M/1205M/1209M/1221M Manual
7
Bekijk gratis de handleiding van Curtis 1205M, stel vragen en lees de antwoorden op veelvoorkomende problemen, of gebruik onze assistent om sneller informatie in de handleiding te vinden of uitleg te krijgen over specifieke functies.
Productinformatie
| Merk | Curtis |
| Model | 1205M |
| Categorie | Niet gecategoriseerd |
| Taal | Nederlands |
| Grootte | 4663 MB |







