Curtis 1204M handleiding
Handleiding
Je bekijkt pagina 12 van 40

2 — INSTALLATION & WIRING: KSI Wiring
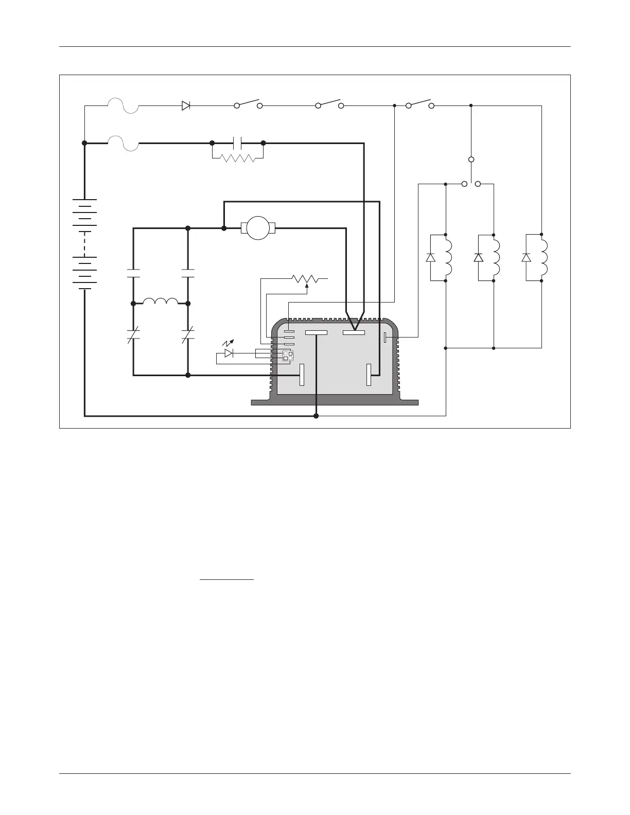
The throttle shown in the basic wiring diagrams is a 2-wire potentiometer.
Various types of throttles can be used; see Throttle Type parameter (page 21)
and throttle wiring (pages 10–13).
Coil suppression diodes should be used on the main and forward/reverse
contactors, as shown.
KSI Wiring
The keyswitch input (KSI) circuit includes input from the keyswitch and from
the various interlocks. The controller KSI is used to turn the controller on and
off. KSI is turned on by connecting it to battery B+. Any positive voltage greater
than about 16 volts will turn on the controller, but usually the full vehicle bat-
tery voltage is used. KSI draws up to 130 mA with the programmer connected,
and up to 70 mA without the programmer.
In its simplest form, KSI is operated by a keyswitch that turns the ve-
hicle off and prevents unauthorized use. The keyswitch should also turn off
the main contactor and the forward/reverse contactors. This will act as a safety
feature by removing power from the motor control system when the keyswitch
is turned off.
Fig. 5 Basic wiring diagram, Curtis 1204M/05M/09M/21M with active reverse input.
STATUS
LED
MOTOR
FIELD
A2 A1
5kΩ THROTTLE
MOTOR
ARMATURE
REVERSE
FORWARD
MAIN
RF
MAIN
KEYSWITCH INTERLOCKS
POLARITY
PROTECTION
DIODE
CONTROL WIRING
FUSE
POWER WIRING
FUSE
S2S1
F
R
F
R
+
–
PEDAL
MICROSWITCH
PRECHARGE RESISTOR
Resistor Values
12V: 33 Ω, 5W
24V: 100Ω, 10W
36–48V: 250Ω,10W
60–72V: 250Ω,20W
A2
M–
B– B+
J1
J2
J3
J4
J5
8
Curtis 1204M/1205M/1209M/1221M Manual
Bekijk gratis de handleiding van Curtis 1204M, stel vragen en lees de antwoorden op veelvoorkomende problemen, of gebruik onze assistent om sneller informatie in de handleiding te vinden of uitleg te krijgen over specifieke functies.
Productinformatie
Merk | Curtis |
Model | 1204M |
Categorie | Niet gecategoriseerd |
Taal | Nederlands |
Grootte | 4663 MB |