Handleiding
Je bekijkt pagina 11 van 36

INSTRUCTION
MANUAL
11
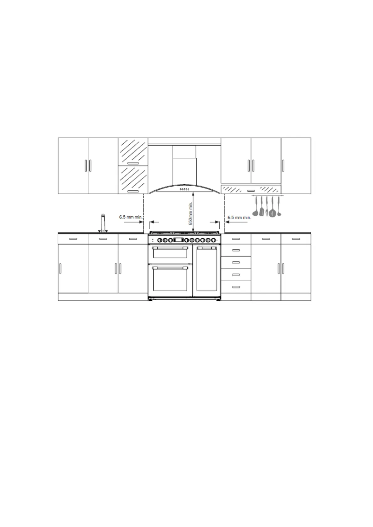
Right Place for Installation and Important warnings
Appliance feet should not stay on soft surfaces such as carpets. The kitchen floor shall be durable to carry the unit
weight and any other kitchenware that may be used on the oven.
The appliance is suitable for use on both side walls, without any support, or without being installed in a cabinet. If a
hood or aspirator will be installed above the cooker, follow the instructions of the manufacturer for height of
mounting. (min. 650 mm).
WARNING: The kitchen furniture near the appliance must be heat resistant.
WARNING: Do not install the appliance beside refrigerators or coolers. Heat radiated by the appliance increases the
energy consumption of cooling devices.
WARNING: Do not use the door and/or handle to carry or move the appliance.
Bekijk gratis de handleiding van Creda C90RCDFTCRM, stel vragen en lees de antwoorden op veelvoorkomende problemen, of gebruik onze assistent om sneller informatie in de handleiding te vinden of uitleg te krijgen over specifieke functies.
Productinformatie
Merk | Creda |
Model | C90RCDFTCRM |
Categorie | Fornuis |
Taal | Nederlands |
Grootte | 5516 MB |