Handleiding
Je bekijkt pagina 26 van 27

-26-
712100-125-130-140 nl en fr de ma 2017.05
61
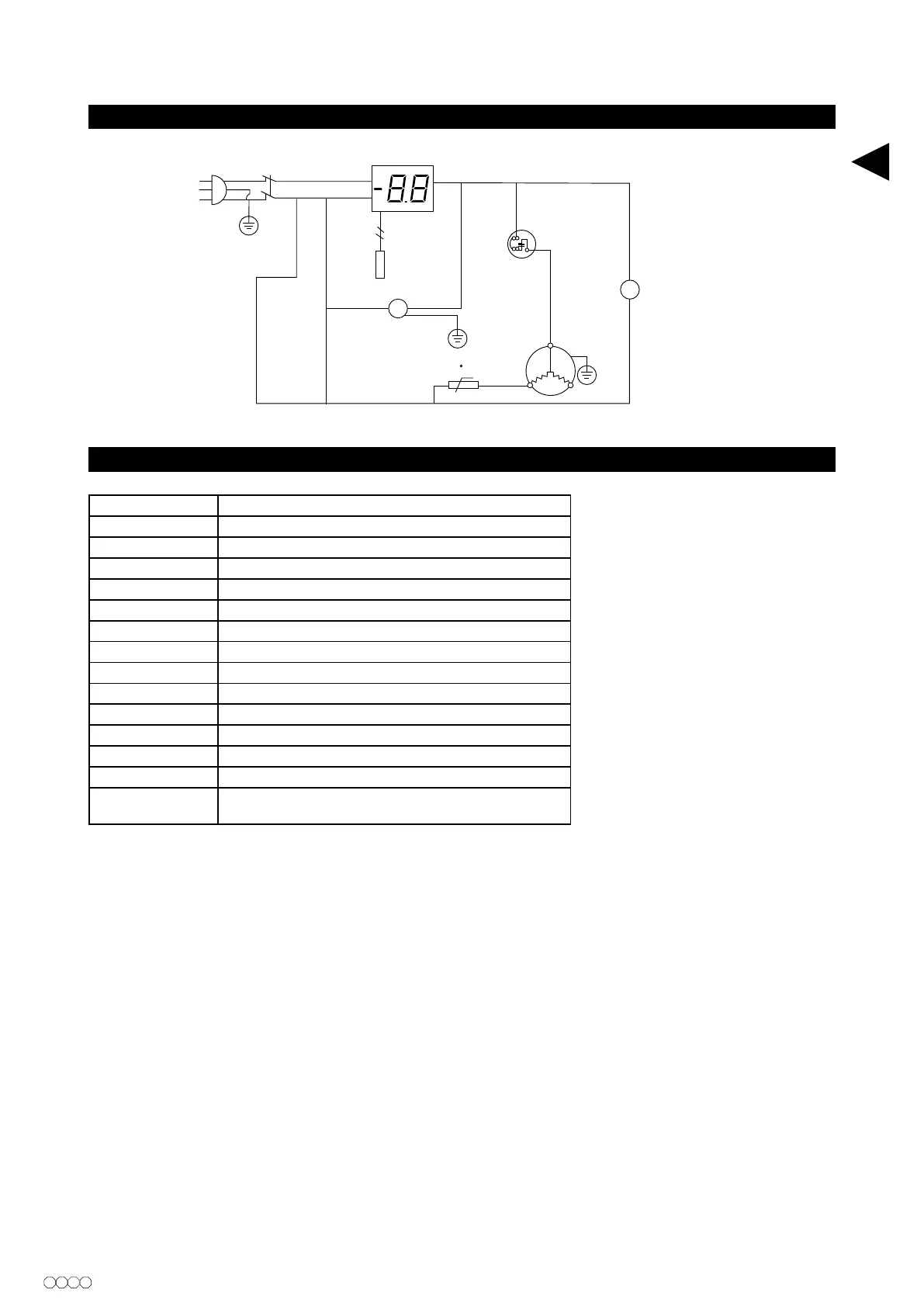
SCHAK ELPLAN
STROOMSTEK K ER
VERMOGENSSCHAK ELAAR
THERMOSTAAT
TEMPERATUURSENSOR
CONDENSATOR
VENTILATORMOTOR
OVERBELASTINGSBEVEI
LIGING
COMPRESSOR
VENTILATORCIRCUIT
VENTILATORMOTOR
PTC-STARTER
TECHNISCHE GEGEVENS
SALADETTE
Nominaal vermogen 220 W
Nominale stroom 1,6 A
Energieverbruik 2,9 kWh/24 h
K oelmiddel R134a(165 g)
K limaatklasse 4 (10° C -32° C)
Nominale frequentie 50 Hz
Nominale spanning 220-240 V
Volume 250 l
Temperatuur 0 - 8° C
Schuimmiddel CP/IP
Brutto- / Nettogewicht 96 kg / 80 kg
Afmetingen (Bx Hx D) 900 x 880 x 700 mm/ 900 x 880 x 700 mm
Geluidsniveau 62 dB(A)
Bescherming tegen
elektrische schok
I
NL
Bekijk gratis de handleiding van Cool Head 712125, stel vragen en lees de antwoorden op veelvoorkomende problemen, of gebruik onze assistent om sneller informatie in de handleiding te vinden of uitleg te krijgen over specifieke functies.
Productinformatie
| Merk | Cool Head |
| Model | 712125 |
| Categorie | Koelkast |
| Taal | Nederlands |
| Grootte | 3204 MB |
