Continental SW48-N-BS handleiding

32 pagina's
PDF beschikbaar

Handleiding

Je bekijkt pagina 27 van 32
27
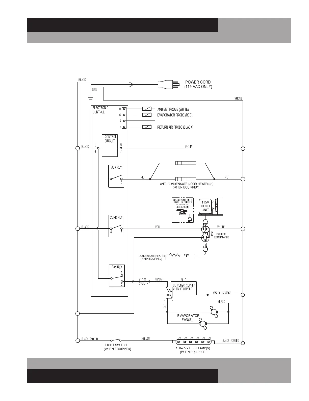
OPERATIONS MANUAL
WORKTOP/UNDERCOUNTERS & SANDWICH UNITS
WORKTOP/UNDERCOUNTER REFRIGERATOR 115/60/1
W/ STANDARD ELECTRONIC CONTROL WD-R5-EC WIRING DIAGRAM

Bekijk gratis de handleiding van Continental SW48-N-BS, stel vragen en lees de antwoorden op veelvoorkomende problemen, of gebruik onze assistent om sneller informatie in de handleiding te vinden of uitleg te krijgen over specifieke functies.

Productinformatie

MerkContinental
ModelSW48-N-BS
CategorieKoelkast
TaalNederlands
Grootte5643 MB