Continental PA68N-D handleiding

32 pagina's
PDF beschikbaar

Handleiding

Je bekijkt pagina 29 van 32
29
OPERATIONS MANUAL
REFRIGERATED BASES & PIZZA PREP TABLES
BASE WORKTOP FREEZER 115/60/1
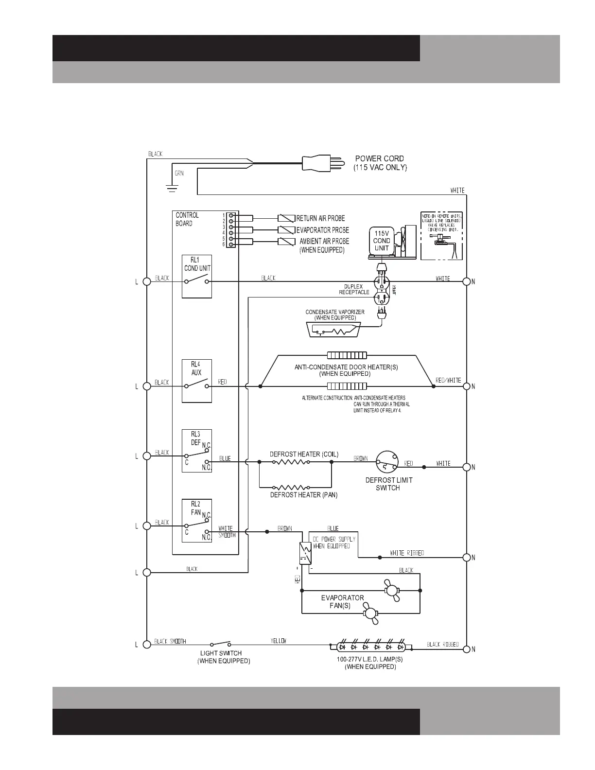
W/ SPLIT ELECTRONIC CONTROL WD-F5-EC-SP WIRING DIAGRAM

Bekijk gratis de handleiding van Continental PA68N-D, stel vragen en lees de antwoorden op veelvoorkomende problemen, of gebruik onze assistent om sneller informatie in de handleiding te vinden of uitleg te krijgen over specifieke functies.

Productinformatie

MerkContinental
ModelPA68N-D
CategorieKoelkast
TaalNederlands
Grootte5803 MB