Continental PA60N-D handleiding

32 pagina's
PDF beschikbaar

Handleiding

Je bekijkt pagina 29 van 32
29
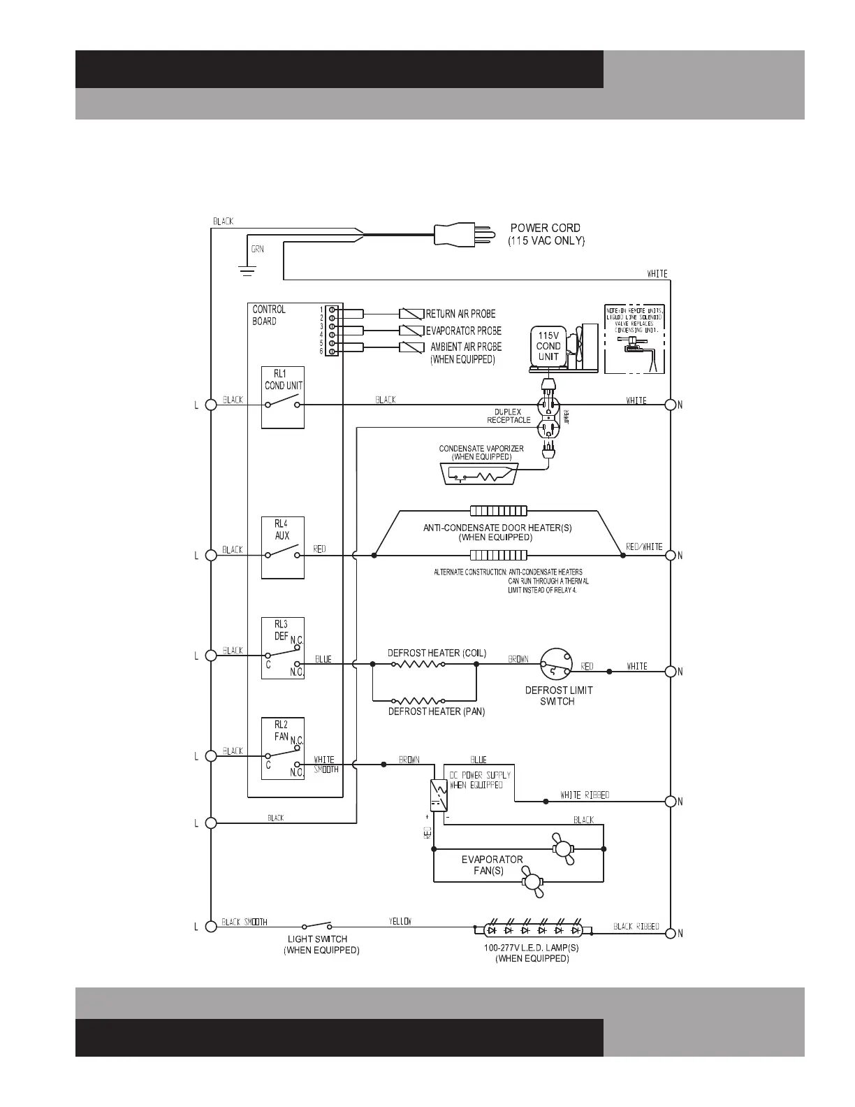
OPERATIONS MANUAL
REFRIGERATED BASES & PIZZA PREP TABLES
BASE WORKTOP FREEZER 115/60/1
W/ SPLIT ELECTRONIC CONTROL WD-F5-EC-SP WIRING DIAGRAM

Bekijk gratis de handleiding van Continental PA60N-D, stel vragen en lees de antwoorden op veelvoorkomende problemen, of gebruik onze assistent om sneller informatie in de handleiding te vinden of uitleg te krijgen over specifieke functies.

Productinformatie

MerkContinental
ModelPA60N-D
CategorieNiet gecategoriseerd
TaalNederlands
Grootte5803 MB