Cleveland 24CGA10.2ES handleiding
Handleiding
Je bekijkt pagina 7 van 57

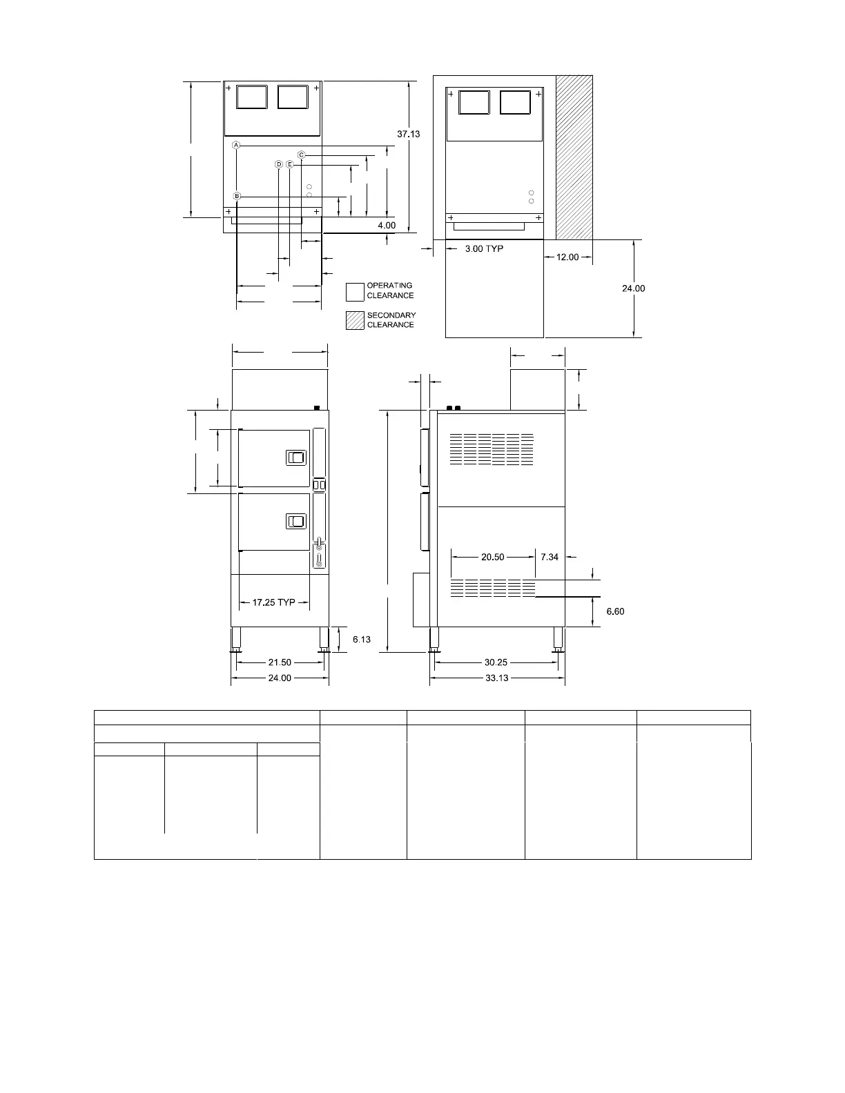
Figure 2-2 Gemini 24CGA6.2SES Dimensions and Clearances
A A GAS B ELECTRIC COLD WATER CLEARANCE C DRAINAGE
1-1/4" IPS line size, 3/4" connection
115V-1Phase, 60 Hz.
35 PSI minimum RIGHT = 12.00" for service
2" dia. O.D.
NATURAL PROPANE BTU 2 Fans & controls 60 psi maximum SIDES = 3.00”
Piping 3/4" NPT Piping 3/4" NPT. 50,000
each
150 watts each
(1) 1/2" dia. IPS for
D
Condenser
REAR = 3.00” Do not connect other units to
this drain.
Supply pressure Supply pressure Generator
FRONT = 24.00” Drain must be free air vented.
4.50" W.C. Min.
14.00” W.C. Max.
11.00" W.C. Min.
14.00” W.C. Max.
100,000 total
(1) 3/8" dia. IPS for
E
Generator
Drain plumbing must be able
to withstand 140°F (60°C).
Manufacturer must be notified if unit will
be used above 2,000 feet
The drain must not be located
beneath the steamer itself.
20.63
33.13
4.87
7.75
10.44
5.00
12.76
15.06
17.43
59.21
13.25
10.00
2.06
20.88
5.00
4.75
13.88
20.36
23.37
Bekijk gratis de handleiding van Cleveland 24CGA10.2ES, stel vragen en lees de antwoorden op veelvoorkomende problemen, of gebruik onze assistent om sneller informatie in de handleiding te vinden of uitleg te krijgen over specifieke functies.
Productinformatie
| Merk | Cleveland |
| Model | 24CGA10.2ES |
| Categorie | Niet gecategoriseerd |
| Taal | Nederlands |
| Grootte | 14871 MB |







