Handleiding
Je bekijkt pagina 12 van 108

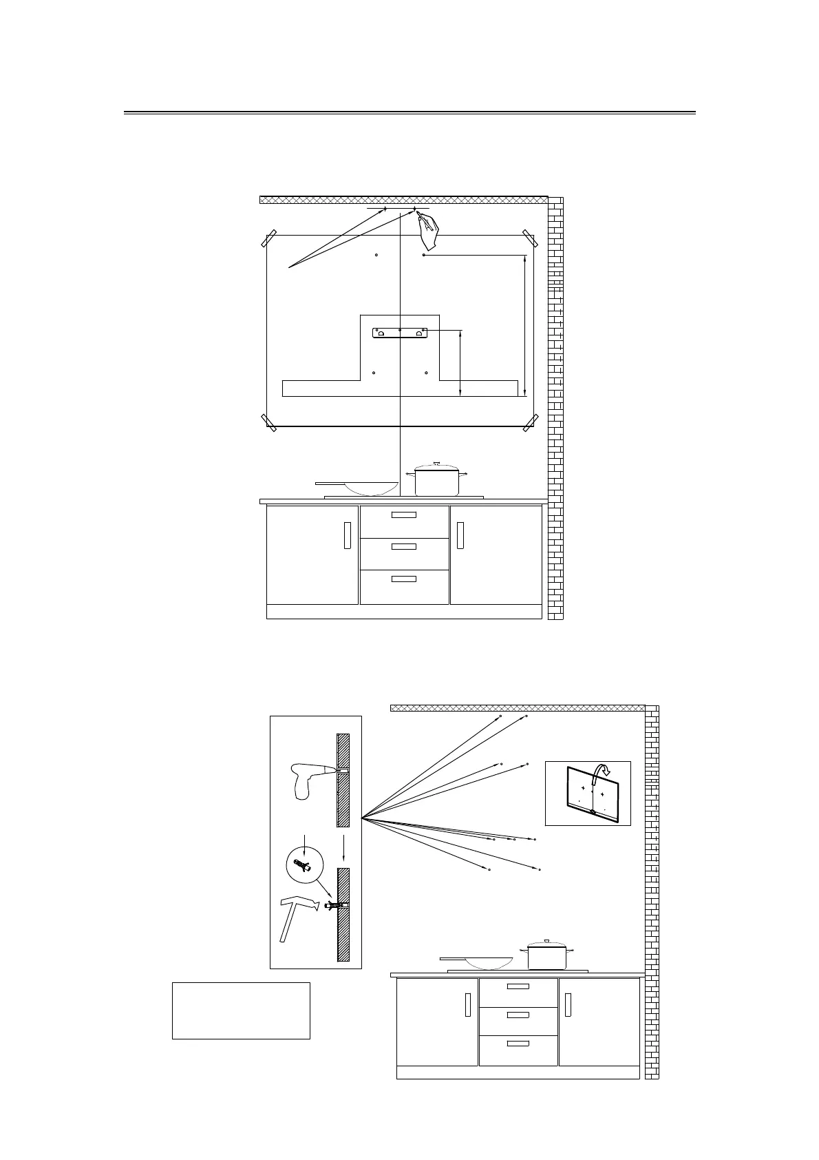
Installation
5) Determine the maximum chimney installation height according to
the actual scenario and mark the chimney installation
locations along the center line of the Installation Diagram.
6) Remove the Installation Diagram, drill the holes that have been
marked on the wall with an Electric Drill (8mm drill), and hammer
the Wall Plug into the wall.
Chimney
installation
locations
537mm
310mm
Wall Plug
COMPONENTS:
Part 1: Wall Plug X 9
10
Bekijk gratis de handleiding van Ciarra CD9102B-P, stel vragen en lees de antwoorden op veelvoorkomende problemen, of gebruik onze assistent om sneller informatie in de handleiding te vinden of uitleg te krijgen over specifieke functies.
Productinformatie
| Merk | Ciarra |
| Model | CD9102B-P |
| Categorie | Afzuigkap |
| Taal | Nederlands |
| Grootte | 15359 MB |







