Handleiding
Je bekijkt pagina 31 van 64

DE
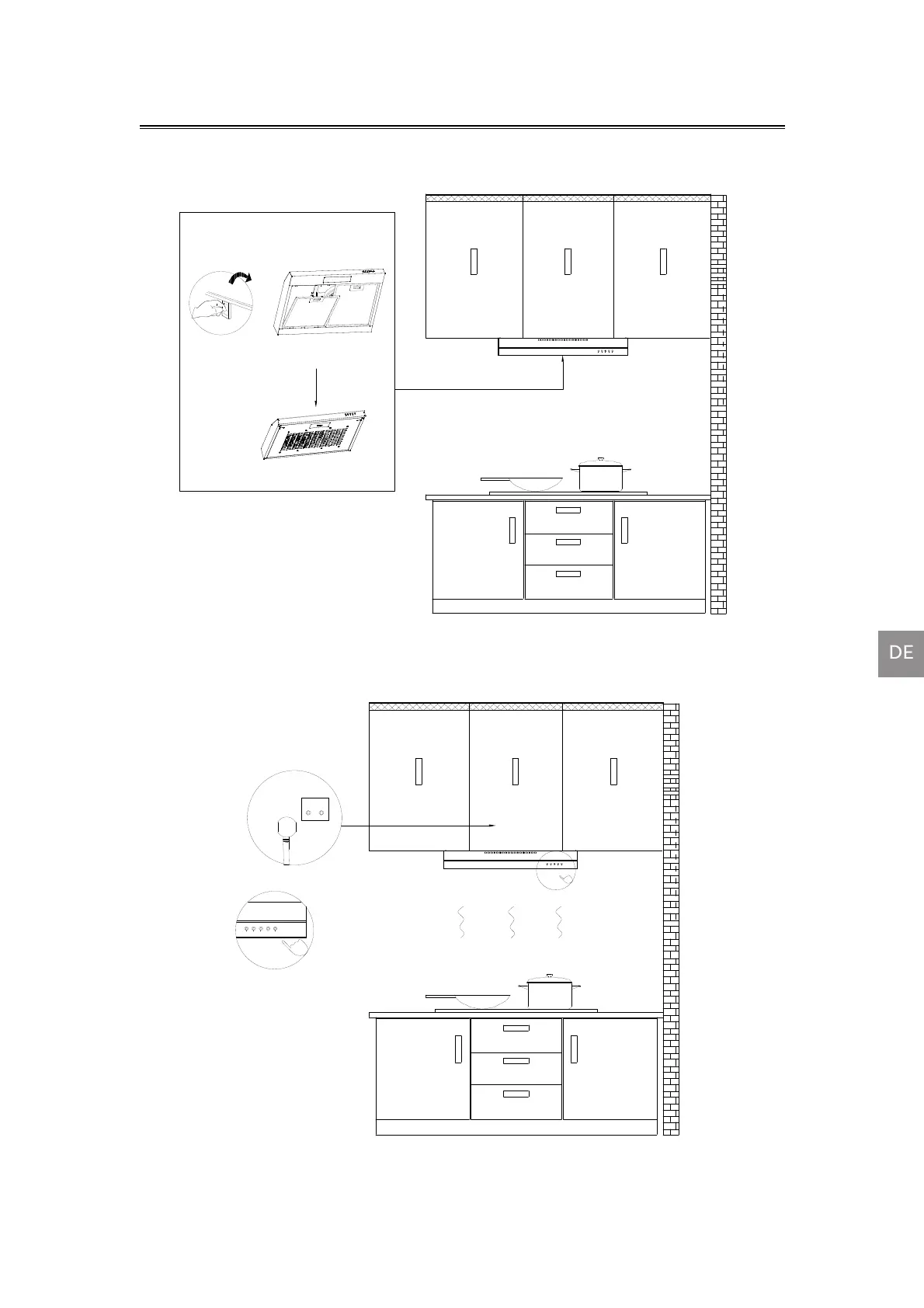
Installation
6) Schließen Sie die Stromversorgung an, schalten Sie die LED-
Beleuchtung ein/aus und prüfen Sie, ob die Funktionen
Hinweis:
Stellen Sie sicher, dass Sie das Klebeband vom Dämpfer entfernen
und überprüfen Sie, ob der Dämpfer frei geöffnet und geschlossen
werden kann, sonst macht er der Lärm und die Dunstabzugshaube
wackelt.
ordnungsgemäß funktionieren.
29
5) Setzen Sie den Fettfilter wieder auf die Dunstabzugshaube.
Bekijk gratis de handleiding van Ciarra CD6903DB, stel vragen en lees de antwoorden op veelvoorkomende problemen, of gebruik onze assistent om sneller informatie in de handleiding te vinden of uitleg te krijgen over specifieke functies.
Productinformatie
| Merk | Ciarra |
| Model | CD6903DB |
| Categorie | Afzuigkap |
| Taal | Nederlands |
| Grootte | 6275 MB |







