Handleiding
Je bekijkt pagina 16 van 96

EN
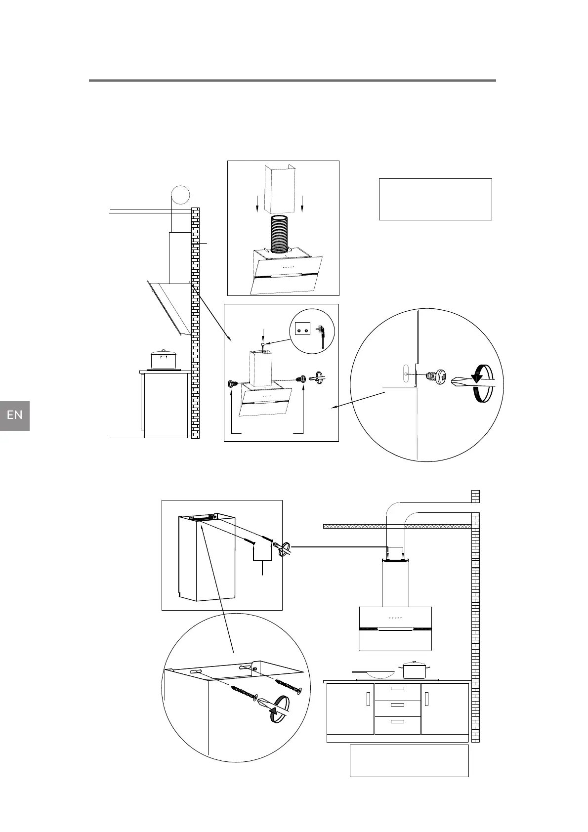
Installation
13) Insert the Lower Chimney into the hood and fix it to the
corresponding positioning hole with two 4*8mm Screws. (Note: That
the power cord needs to go through the chimney and connect the
power).
14) Use two 4*30mm Screws to lock the Lower Chimney Bracket into the
corresponding positioning holes on the wall.
4*30mm
Screws
COMPONENTS:
Part 3: 4*8mm Screws X 2
COMPONENTS:
Part 2: 4*30mm Screws X 2
4*8mm Screws
Power Plug
14
Bekijk gratis de handleiding van Ciarra CD6736FB, stel vragen en lees de antwoorden op veelvoorkomende problemen, of gebruik onze assistent om sneller informatie in de handleiding te vinden of uitleg te krijgen over specifieke functies.
Productinformatie
| Merk | Ciarra |
| Model | CD6736FB |
| Categorie | Afzuigkap |
| Taal | Nederlands |
| Grootte | 13527 MB |







