Ciarra CBCB6909A handleiding
Handleiding
Je bekijkt pagina 14 van 76

EN
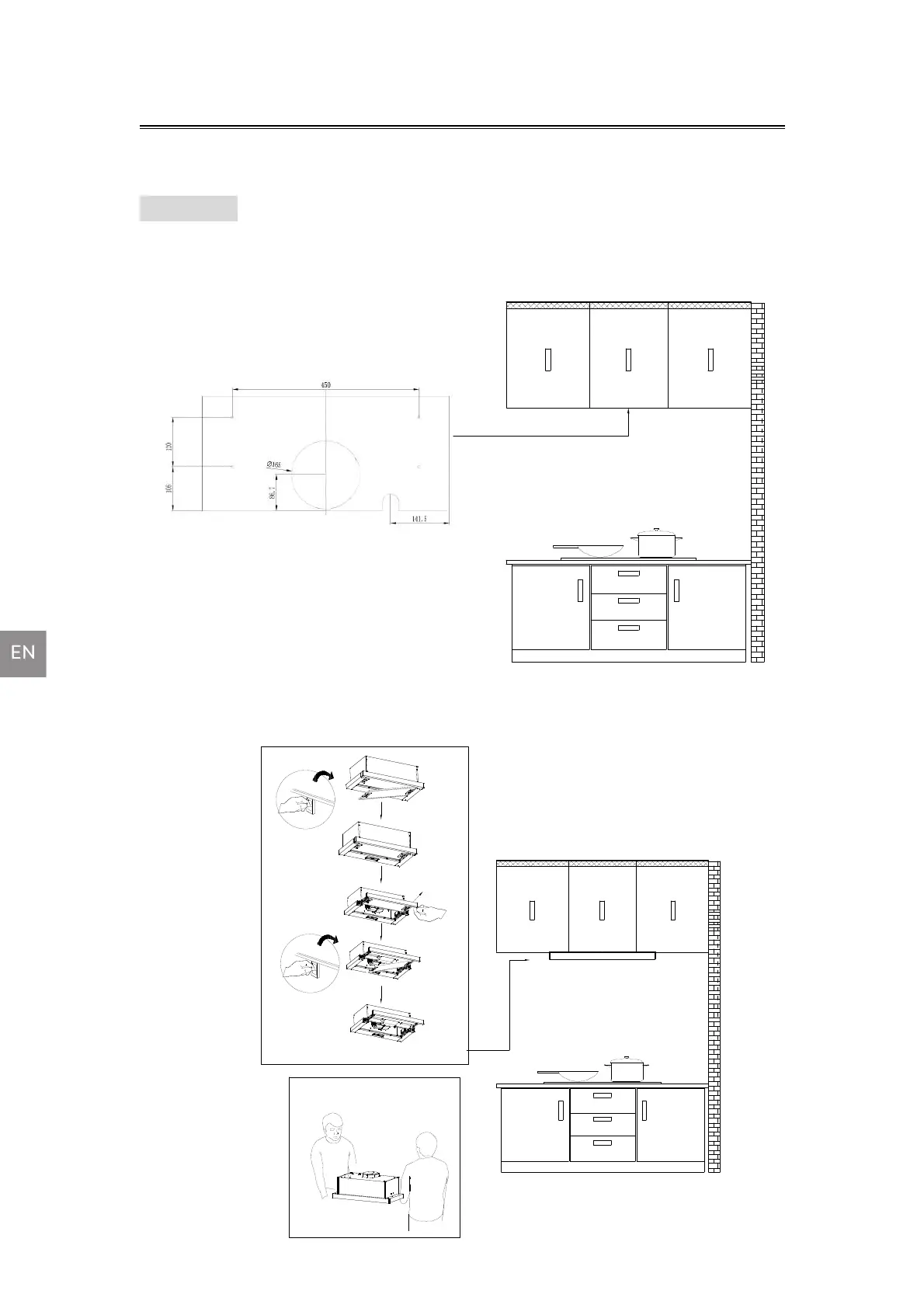
Installation
4. If the cooker hood is installed at the bottom of the cabinet, please
follow Way 2 below.
Way 2:
1) Use the drilling tool to open a 165mm diameter air pipe hole and
a power cord hole at the bottom of the cabinet according to the
installation diagram.
2) Press the lock on the left of the grease filter and pull it downward.
Pull out the slide and detach the other grease filter.Then put the cooker
hood under the cabinet.
12
Bekijk gratis de handleiding van Ciarra CBCB6909A, stel vragen en lees de antwoorden op veelvoorkomende problemen, of gebruik onze assistent om sneller informatie in de handleiding te vinden of uitleg te krijgen over specifieke functies.
Productinformatie
Merk | Ciarra |
Model | CBCB6909A |
Categorie | Niet gecategoriseerd |
Taal | Nederlands |
Grootte | 8299 MB |