Chief DVM27U4 handleiding
Handleiding
Je bekijkt pagina 8 van 24

Installation Instructions DVM27U Series
8
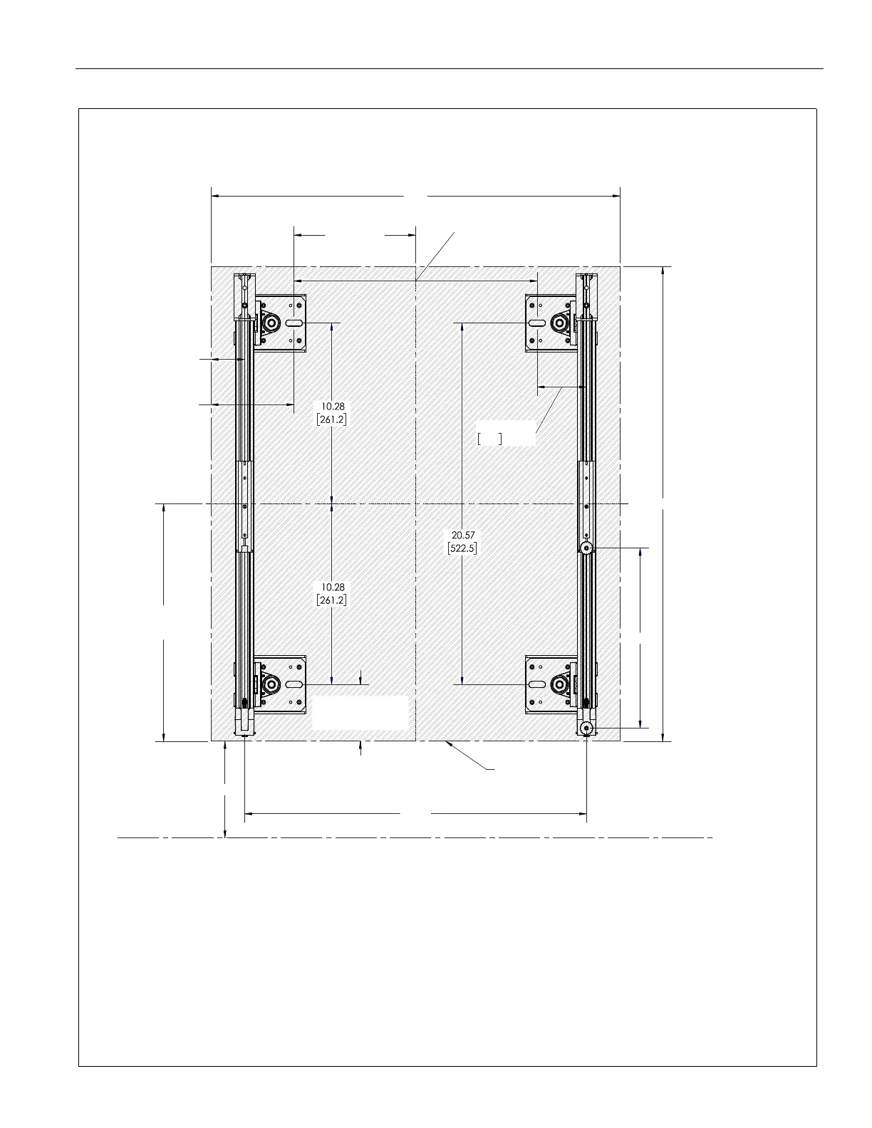
MEASUREMENT WORKSHEET - DVM27U (2-HIGH)
DW
(MPW /2)
- 2.875 [73.0]
C
L
MPW - 5.75[146.1]
(DW -MPW)/ 2
[(DW -MPW)/2]
+2.875 [73.0]
2.898(2-7/8")
73.6
C
L
2X DH
DH____________IN
DW___________ IN
MPH__________ IN
MPW_________ IN
AFF___________ IN
MPH
DH____________mm
DW___________ mm
MPH__________ mm
MPW_________ mm
AFF___________ mm
AFF
DH - 10.28 [261.1]
FO RMULA TO CENTER
DISPLAYS ON MO UNT
MPW
BOTTOM EDGE
OF DISPLAY
DVLED PANEL: ____________________________
DH = DVLED DISPLAY HEIGHT
DW = DVLED DISPLAY W IDTH
MPH = MOUNTING PATTERN HEIGHT
MPW - MOUNTIN G PATTERN W IDTH
AFF = ABOVE FINISHED FLOOR
C O F MO UNT
TO DISPLAY EDGE
(1X DISPLAY HEIGHT)
L
Bekijk gratis de handleiding van Chief DVM27U4, stel vragen en lees de antwoorden op veelvoorkomende problemen, of gebruik onze assistent om sneller informatie in de handleiding te vinden of uitleg te krijgen over specifieke functies.
Productinformatie
| Merk | Chief |
| Model | DVM27U4 |
| Categorie | Niet gecategoriseerd |
| Taal | Nederlands |
| Grootte | 3836 MB |







