Chief DVM27U2E handleiding
Handleiding
Je bekijkt pagina 9 van 24

DVM27U Series Installation Instructions
9
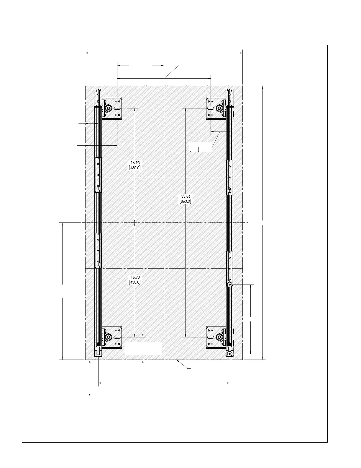
MEASUREMENT WORKSHEET - DVM27U (3-HIGH)
D W
(MPW/2)
- 2.875 [73.0]
M PW - 5.75[146.1]
C
L
(DW -M PW)/ 2
[(DW -MPW)/2]
+2.875 [73.0]
2.898(2-7/8")
73.6
C
L
3X DH
DH____________IN
DW___________ IN
MPH__________ IN
MPW_________ IN
AFF___________ IN
DH____________mm
DW___________ mm
MPH__________ mm
MPW_________ mm
AFF___________ mm
AFF
1.5(DH) -16.93 [430.0]
FORMULA TO CENTER
DISPLAYS O N MOUNT
MPW
MPH
BOTTOM EDGE
OF DISPLAY
DVLED PANEL: ____________________________
DH = DVLED DISPLAY HEIGHT
DW = DVLED DISPLAY WIDTH
MPH = MOUNTING PATTERN HEIGHT
MPW - M OUNTING PATTERN WIDTH
AFF = ABOVE FINISHED FLOOR
C OF MOUNT
TO DISPLAY EDG E
(1.5 X DISPLAY HEIGHT)
L
Bekijk gratis de handleiding van Chief DVM27U2E, stel vragen en lees de antwoorden op veelvoorkomende problemen, of gebruik onze assistent om sneller informatie in de handleiding te vinden of uitleg te krijgen over specifieke functies.
Productinformatie
| Merk | Chief |
| Model | DVM27U2E |
| Categorie | Niet gecategoriseerd |
| Taal | Nederlands |
| Grootte | 3836 MB |







