Handleiding
Je bekijkt pagina 28 van 58

EN - 12
Fan motor assemblies:
- Check the power supply voltage and heat protection calibration in accordance with the current ratings of the various elements
- Check that the earth is connected and that the wheel turns freely
- Check the air flow and operating pressure
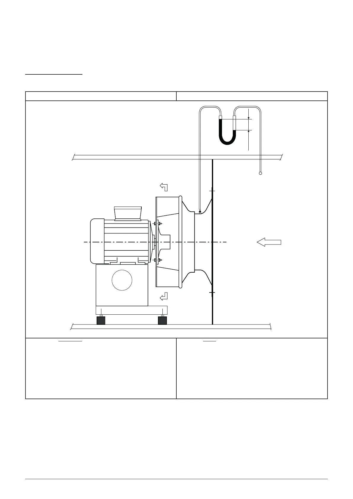
Calculating the air flow:
Plug fan with asynchronous motor Plug fan with EC motor
3
Q K
=
√
2
—
ρ
. (ΔP)
x Nombre de GMV
Q: air flow (m3/h)
ρ: air volume mass (kg/m3)
P: pressure (Pa)
K = 60 (for NPL 280 FMA)
Q K
=
√
(ΔP) x Nombre de GMV
Q: air flow (m3/h)
ρ: air volume mass (kg/m3)
P: pressure (Pa)
K = 93 (for K3G 280 FMA)
Bekijk gratis de handleiding van Carrier 39CQ, stel vragen en lees de antwoorden op veelvoorkomende problemen, of gebruik onze assistent om sneller informatie in de handleiding te vinden of uitleg te krijgen over specifieke functies.
Productinformatie
Merk | Carrier |
Model | 39CQ |
Categorie | Airco |
Taal | Nederlands |
Grootte | 9883 MB |