Caple Di633 handleiding
Handleiding
Je bekijkt pagina 38 van 52

Instruction manual DI63338
Please keep this instruction manual for future reference
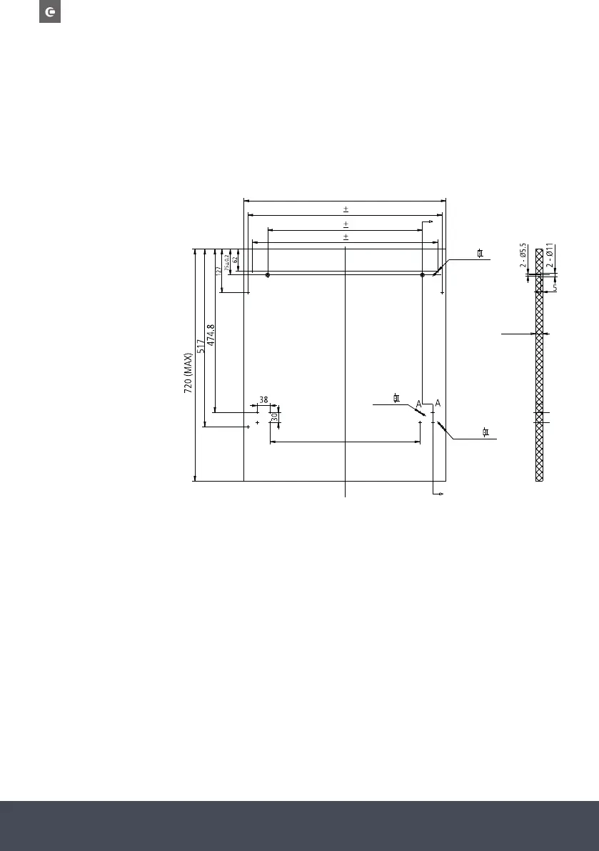
AESTHETIC DOOR PANEL DIMENSIONS AND INSTALLATION
The aesthetic door panel could be processed according to the Figure 3.
FIGURE 3
The aesthetic
door panel should
be processed in
accordance with the
illustrated dimensions.
[Unit: mm]
589
A
20 (MAX)
2 - Ø2( 8)
4 - Ø2( 8)
8 - Ø2( 8)
A-A
A
436
566 0.2
451 0.2
450 0.2
Bekijk gratis de handleiding van Caple Di633, stel vragen en lees de antwoorden op veelvoorkomende problemen, of gebruik onze assistent om sneller informatie in de handleiding te vinden of uitleg te krijgen over specifieke functies.
Productinformatie
Merk | Caple |
Model | Di633 |
Categorie | Vaatwasser |
Taal | Nederlands |
Grootte | 4109 MB |