Capital Precision MCR305 handleiding

42 pagina's
PDF beschikbaar

Handleiding

Je bekijkt pagina 35 van 42
35
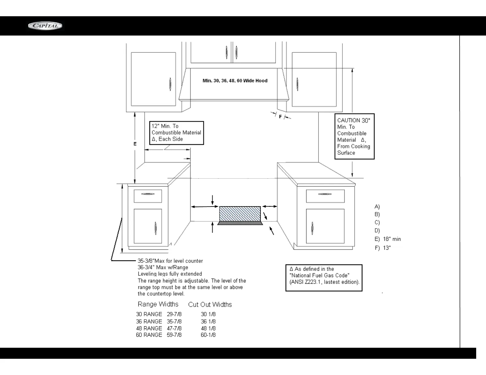
CABINET INSTALL DRAWING / FRONT VIEW
FIG 1A. Cabinet Clearances:
MCR-SERIES
ELECTRICAL AND GAS
SUPPLY
A
B
10”
4”
10”
2-1/2”
D
C
min

Bekijk gratis de handleiding van Capital Precision MCR305, stel vragen en lees de antwoorden op veelvoorkomende problemen, of gebruik onze assistent om sneller informatie in de handleiding te vinden of uitleg te krijgen over specifieke functies.

Productinformatie

MerkCapital
ModelPrecision MCR305
CategorieFornuis
TaalNederlands
Grootte8435 MB