Handleiding
Je bekijkt pagina 81 van 120

81
INSTALLAZIONE DEL PIANO COTTURA
Controllare se l’installazione elettrica è adeguata per portare l’apparecchio
in condizioni operative. In caso contrario contattare un elettricista e un
idraulico per rendere questi servizi conformi ai requisiti. Il produttore non
è responsabile per operazioni svolte da persone non autorizzate.
ATTENZIONE: È responsabilità del cliente preparare la posizione in cui
collocare il prodotto e preparare l’installazione elettrica.
ATTENZIONE: Le regole degli standard locali relative alle installazioni
elettriche devono essere seguite durante l’installazione del prodotto.
ATTENZIONE: Controllare eventuali danni sull’apparecchio prima
di installarlo. Non installare il prodotto se è danneggiato. I prodotti
danneggiati creano rischi per la sicurezza dell’utente.
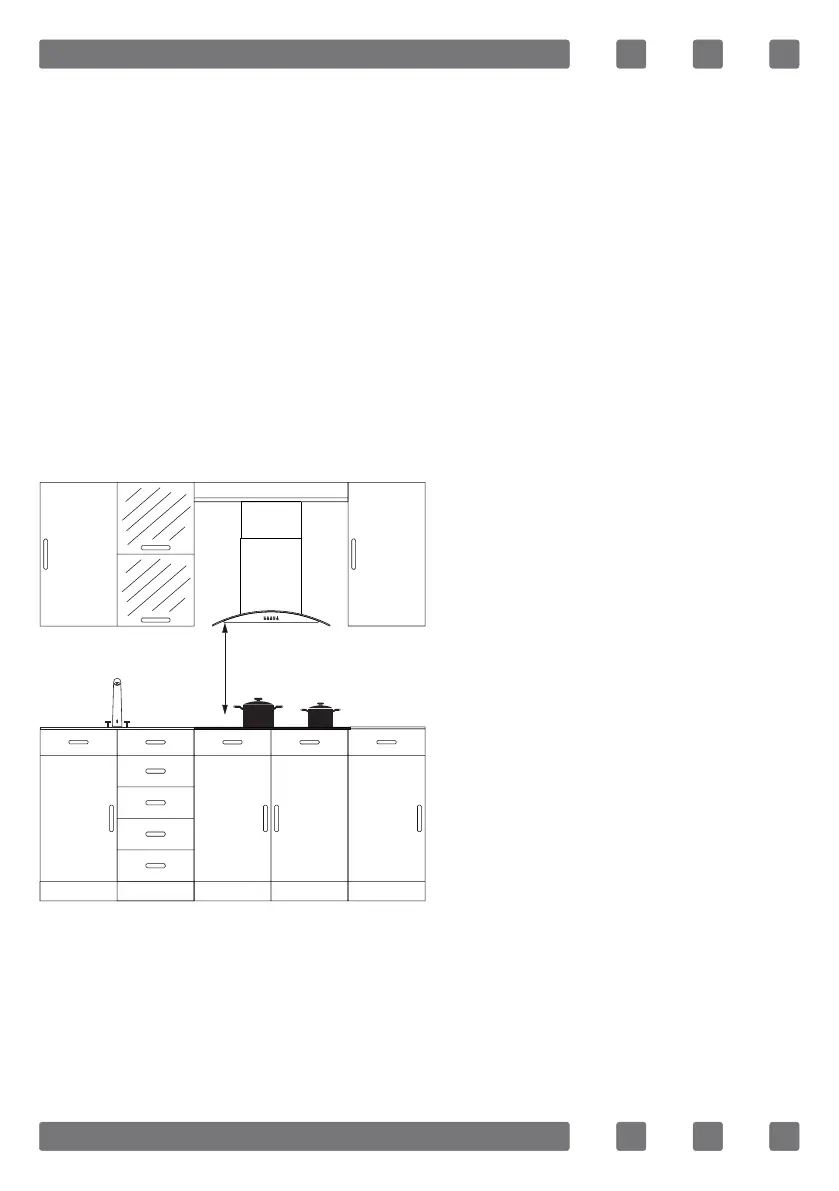
Luogo Adatto All’installazione
Il prodotto é stato progettato
secondo i piani di lavoro presenti
sul mercato. Si deve lasciare una
distanza di sicurezza tra le pareti
e i mobili della cucina e il prodotto.
Qualora sopra il piano di cottura
venga montata una cappa
o un aspiratore, rispettate
l’altezza di montaggio suggerita
dal produttore della cappa o
dell’aspiratore. (min 65 cm).
Il piano di lavoro deve essere
orizzontalmente livellato e ssato.
L’apertura del piano di lavoro su
cui sara’ montato il piano di cottura
deve essere tagliata secondo le misure di montaggio del piano di cottura.
Durante il montaggio del piano di cottura si devono rispettare le norme
locali relative all’energia elettrica e al gas.
650 mm min.
IT
Bekijk gratis de handleiding van Candy CHG93WPX MAR, stel vragen en lees de antwoorden op veelvoorkomende problemen, of gebruik onze assistent om sneller informatie in de handleiding te vinden of uitleg te krijgen over specifieke functies.
Productinformatie
| Merk | Candy |
| Model | CHG93WPX MAR |
| Categorie | Fornuis |
| Taal | Nederlands |
| Grootte | 9309 MB |







