Handleiding
Je bekijkt pagina 50 van 120

50
INSTALLATION DU DESSUS DE LA CUISINIÈRE
Vériez si l’installation électrique est appropriée pour mettre l’appareil
en état de fonctionnement. Si l’installation électrique ne convient pas,
appelez un électricien et un plombier pour les organiser au besoin. Le
fabricant ne peut être tenu responsable des dommages causés par des
opérations effectuées par des personnes non autorisées.
AVERTISSEMENT: Il est de la responsabilité du client de préparer
l’emplacement où l’appareil doit être placé et d’avoir également une
source d’électricité préparée.
AVERTISSEMENT: Les règles dans les normes locales concernant les
installations électriques doivent être respectées lors de l’installation de
l’appareil.
AVERTISSEMENT: Vériez s’il y a des dommages sur l’appareil avant de
l’installer. N’installez pas l’appareil s’il est endommagé. Les appareils
endommagés présentent un danger pour votre sécurité.
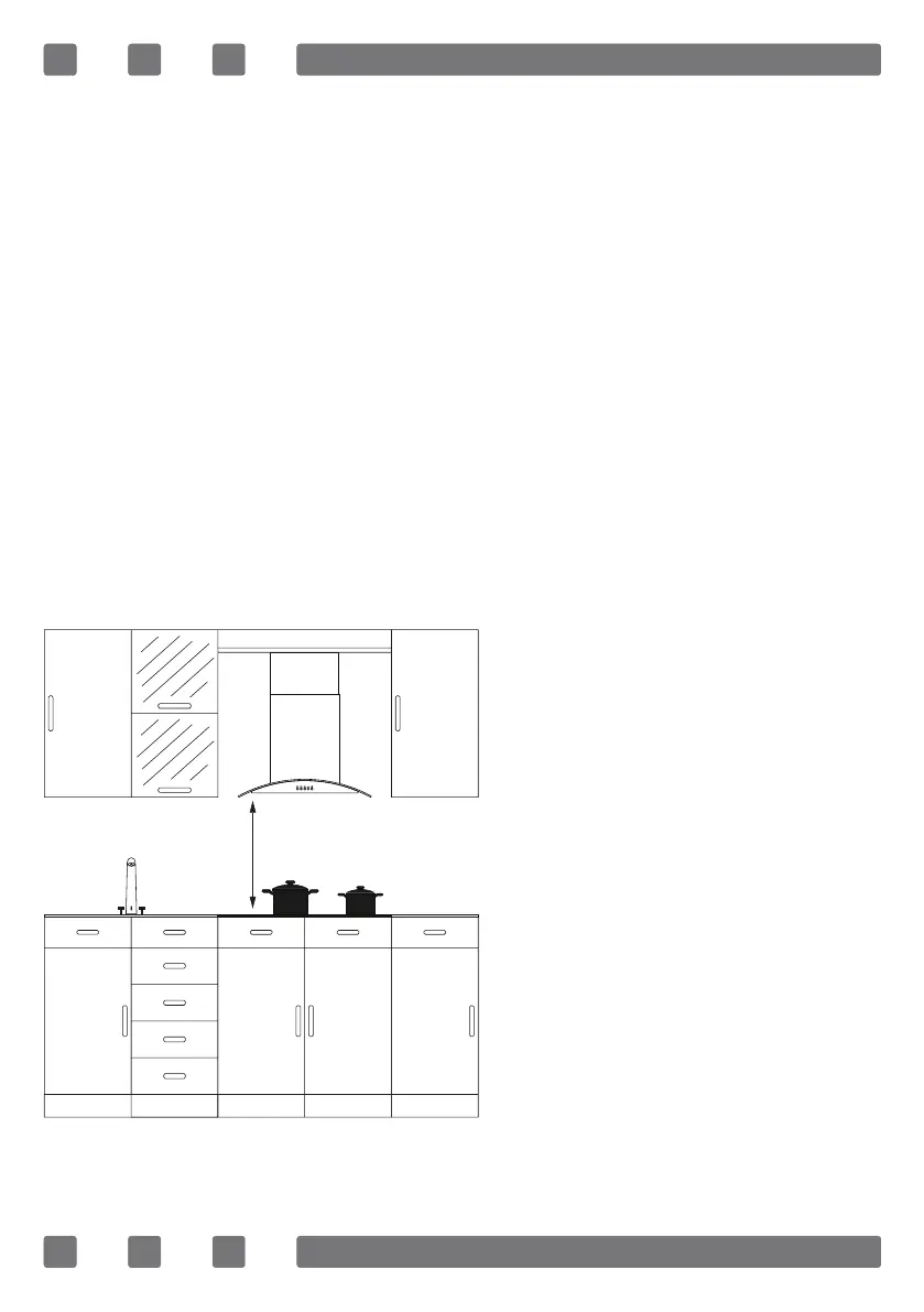
Bon Emplacement Pour L’installation
Dans le cas où une installation
d’une hotte / d’un aspirateur
doit se faire sur le produit, veuillez
suivre les recommandations.
Du producteur de hotte / d’aspira-
teur pour la hauteur d’installation.
(Min. 65 cm).
Le vide sur le comptoir dans lequel
la cuisinière sera installé doit être
découpé selon les dimensions
d’installation de la cuisinière.
Lors de l’installation du produit, il
est nécessaire de suivre les règles
sur les normes locales en lien
avec l’électricité.
650 mm min.
FR
Bekijk gratis de handleiding van Candy CHG93WPX MAR, stel vragen en lees de antwoorden op veelvoorkomende problemen, of gebruik onze assistent om sneller informatie in de handleiding te vinden of uitleg te krijgen over specifieke functies.
Productinformatie
| Merk | Candy |
| Model | CHG93WPX MAR |
| Categorie | Fornuis |
| Taal | Nederlands |
| Grootte | 9309 MB |







