Candy CH 3C4F0S handleiding
Handleiding
Je bekijkt pagina 10 van 162

Instrucciones de instalación
ES
9
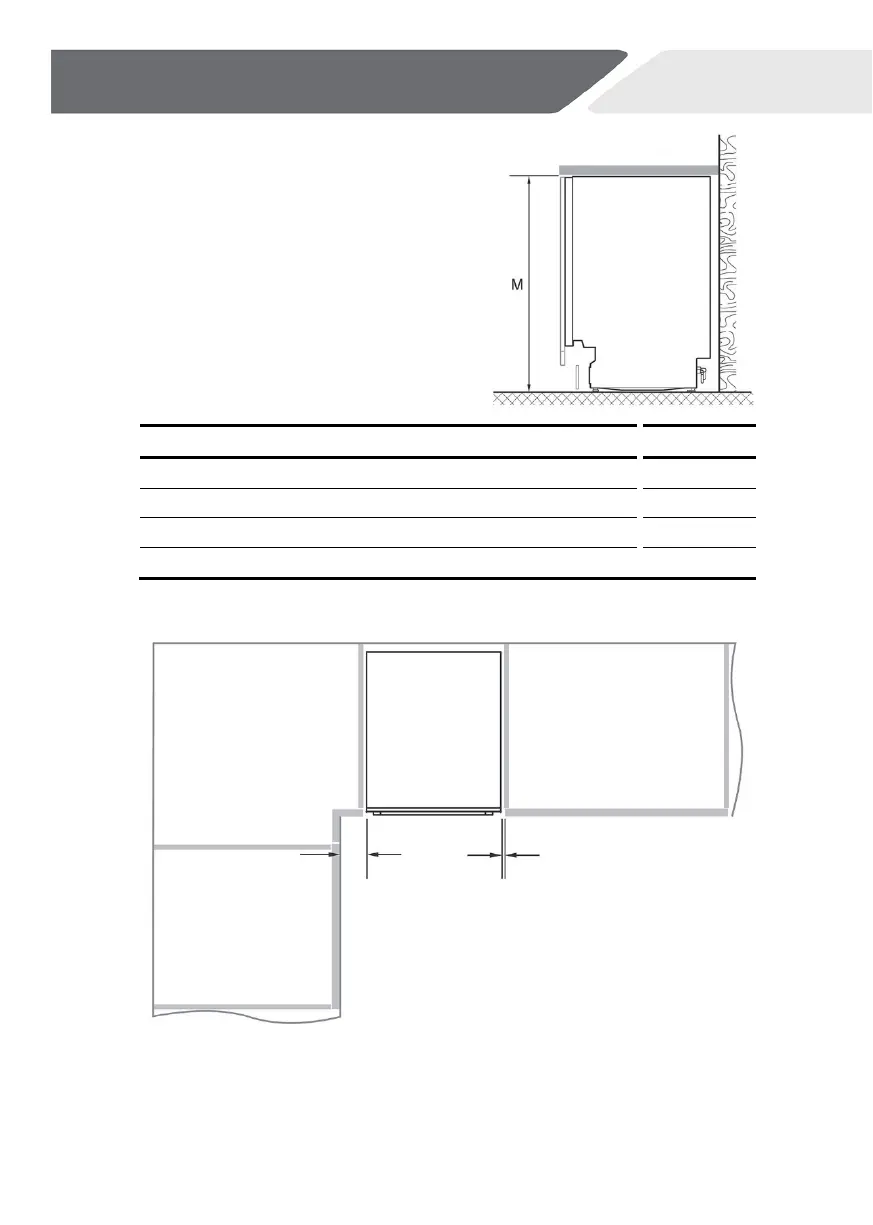
DIMENSIONES DEL MUEBLE
MM
L
Anchura interior del hueco
mín. 600
M
Altura interior del hueco*
820-880
N
Profundidad interior del hueco
mín. 574
* depende del ajuste de las patas de nivelación
Distancia de montaje mínima con muebles adyacentes
PERFIL
mín. 2 mm de distancia
a la puerta del armario
adyacente
mín. de 13 mm
con un armario
esquinero
Bekijk gratis de handleiding van Candy CH 3C4F0S, stel vragen en lees de antwoorden op veelvoorkomende problemen, of gebruik onze assistent om sneller informatie in de handleiding te vinden of uitleg te krijgen over specifieke functies.
Productinformatie
Merk | Candy |
Model | CH 3C4F0S |
Categorie | Vaatwasser |
Taal | Nederlands |
Grootte | 23444 MB |