Handleiding
Je bekijkt pagina 22 van 32

Informations et conseils
Vérifiez la tension, la fréquence et la puissance sur l’étiquette
signalétique apposée sur le corps de l’appareil.
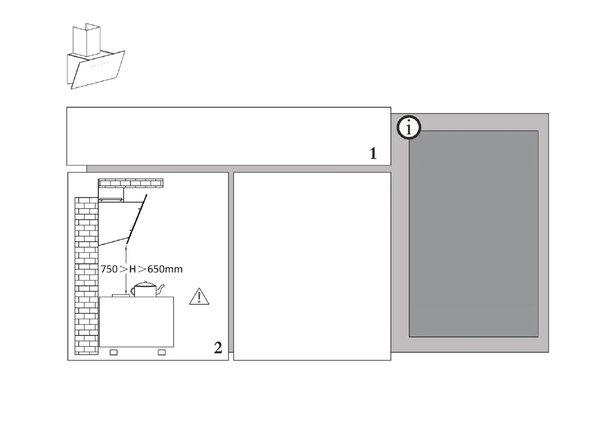
Il est recommandé qu’après
installation, le bas de la hotte
se situe à 650 mm minimum
et 750 mm maximum
au-dessus des éléments
chauffants et brûleurs.
Informations
L’air ne doit pas être
rejeté dans un conduit
de cheminée utilisé
pour évacuer les
fumées provenant
d’autres appareils
brûlant du gaz ou
d’autres combustibles
(ne s’applique pas aux
appareils qui ne
rejettent que l’air dans
la pièce).
Bekijk gratis de handleiding van Candy CDG9CBBGG, stel vragen en lees de antwoorden op veelvoorkomende problemen, of gebruik onze assistent om sneller informatie in de handleiding te vinden of uitleg te krijgen over specifieke functies.
Productinformatie
| Merk | Candy |
| Model | CDG9CBBGG |
| Categorie | Afzuigkap |
| Taal | Nederlands |
| Grootte | 2961 MB |



