Handleiding
Je bekijkt pagina 126 van 138

Przegląd
10
2. Przegląd
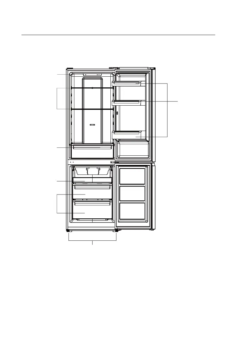
Uwaga: Powyższe zdjęcie ma jedynie charakter poglądowy. Rzeczywiste urządzenie prawdopodobnie wygląda nieco inaczej.
Interfejs
użytkownika
i światło LED
Półki chłodziarki
Szuflada na owoce
i warzywa
W
y
suwana tacka
Szuflad
y
zamrażarki
Stopki poziomu
j
ące
Półki na drzwi chłodziarki
Bekijk gratis de handleiding van Candy CCH2T618EWBF, stel vragen en lees de antwoorden op veelvoorkomende problemen, of gebruik onze assistent om sneller informatie in de handleiding te vinden of uitleg te krijgen over specifieke functies.
Productinformatie
| Merk | Candy |
| Model | CCH2T618EWBF |
| Categorie | Koelkast |
| Taal | Nederlands |
| Grootte | 13085 MB |







