Canarm SXB54CBD10500 handleiding
Handleiding
Je bekijkt pagina 8 van 16

XB, HV, HVA, HVAR, ADD, ADDR, DDS, DDP, SXB, SADD
M0112_NOV 2020 Page 8 of 8www.CANARM.COM
Canarm Ltd. - Corporate Head Office 2157 Parkedale Avenue, PO Box 367 Brockville, Ontario Canada K6V 5V6
Tel: (613) 342-5424 Fax: (613) 342-8437 hvacsales@canarm.ca www.canarm.com
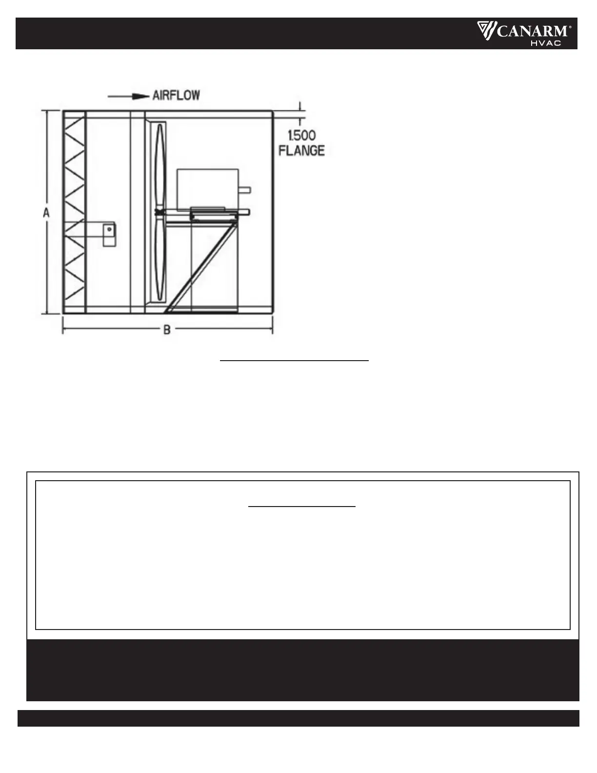
Wall supply fan with steel control damper, cabinet and back guard
ADDR & HVAR FANS
Please note for the reversing models ADDR, HVAR, the supplied reversing switch should be wired in accordance
with the instructions supplied by the manufactures of the switch.
The blade should come to a complete stop before switching direction. Failure to do so may cause damage to the
motor and/or blade.
For trouble shooting and electrical guidelines, the above instructions apply.
WARRANTY
CANARM Ltd. warrants every new fan to be free of defects in materials and workmanship, to the extent that, within a period of one
year from the date of purchase CANARM Ltd. shall either repair or replace at CANARM’s option, and unit or part thereof, returned
freight prepaid, and found to be defective.
This warranty does not include any labour or transportation cost incidental to the removal and reinstallation of the unit at the user’s
premises.
Components repaired or replaced are warranted through the remainder of the original warranty period only.
This warranty applies to the original purchaser-user only; it is null and void in case of altercation, accident, abuse, neglect and
operation not in accordance with instructions.
NOTICE: No warranty claims will be honored by CANARM Ltd. unless prior authorization is obtained.
Installation or Product problems? Do not return to store of purchase.
Contact Canarm Service at 1-800-265-1833 (CANADA) 1-800-267-4427 (U.S.A)
1-800-567-2513 (EN FRANÇAIS) Monday to Friday 8:00am - 5:00pm EST
Bekijk gratis de handleiding van Canarm SXB54CBD10500, stel vragen en lees de antwoorden op veelvoorkomende problemen, of gebruik onze assistent om sneller informatie in de handleiding te vinden of uitleg te krijgen over specifieke functies.
Productinformatie
| Merk | Canarm |
| Model | SXB54CBD10500 |
| Categorie | Ventilator |
| Taal | Nederlands |
| Grootte | 2706 MB |







