Canarm SXB54CBD10500 handleiding
Handleiding
Je bekijkt pagina 16 van 16

XB, HV, HVA, HVAR, ADD, ADDR, DDS, DDP, SXB, SADD
M0112_NOV 2020 Page 8 / 8www.CANARM.COM
Canarm Ltd. - Siège Social 2157 Parkedale Avenue, PO Box 367 Brockville, Ontario Canada K6V 5V6
Tel: (613) 342-5424 Fax: (613) 342-8437 hvacsales@canarm.ca www.canarm.com
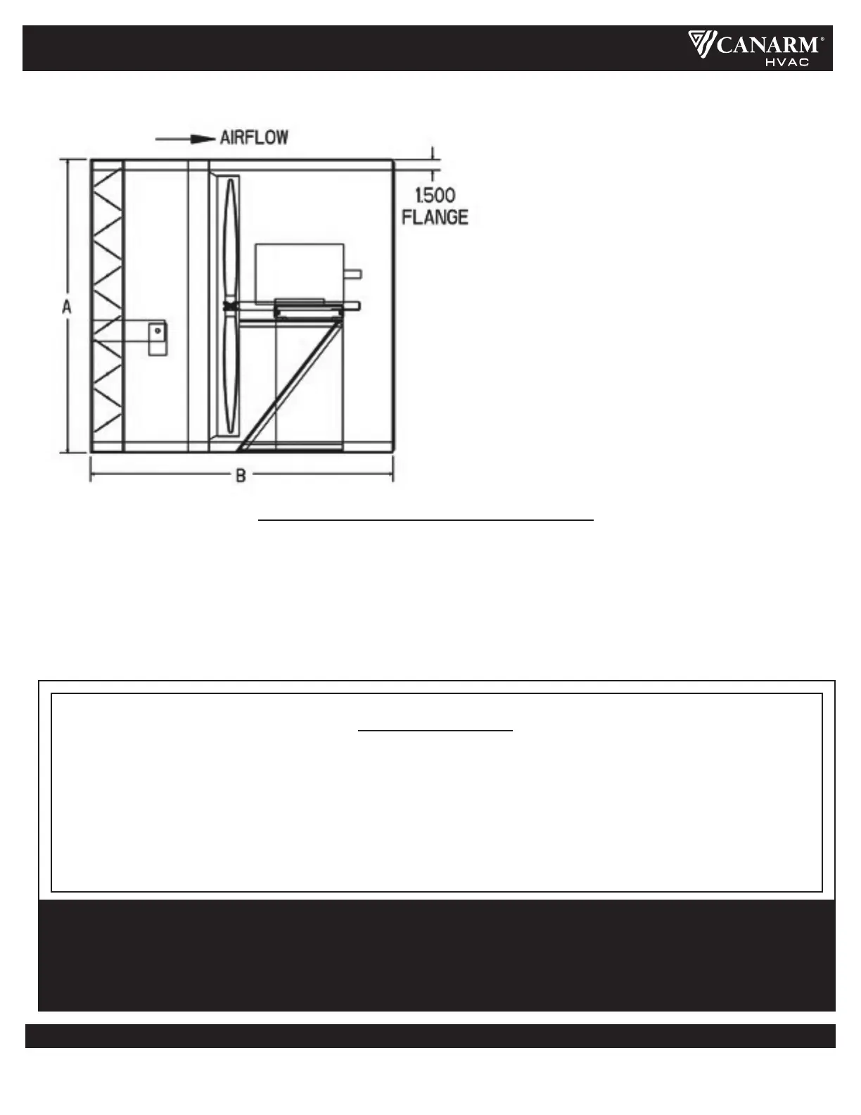
Ventilateur mural avec clapet contrôlé en acier, cabinet et protection arrière
VENTILATEURS ADDR ET HVAR
Veuillez noter que pour les modèles d'inversion ADDR, HVAR, l'interrupteur d'inversion fourni doit être câblé
conformément aux instructions fournies par les fabricants de l'interrupteur.
La lame doit s'arrêter complètement avant de changer de direction. Le non-respect de cette consigne peut
endommager le moteur et / ou la lame.
Pour le dépannage et les directives électriques, les instructions ci-dessus s'appliquent.
GARANTIE
CANARM Ltd. garantit que chaque nouveau ventilateur est exempt de défauts de matériaux et de fabrication dans la mesure où,
dans un délai d'un an à compter de la date d'achat, CANARM Ltd. réparera ou remplacera au choix de CANARM, toute unité ou
partie de celle-ci, fret retourné prépayé et jugé défectueux.
Cette garantie ne comprend pas les frais de main-d’œuvre ou de transport liés au retrait et à la réinstallation de l’unité dans les
locaux de l’utilisateur. Les composantes réparées ou remplacées sont garanties pour le reste de la période de garantie d'origine
uniquement.
AVIS: Aucune réclamation au titre de la garantie ne sera honorée par CANARM Ltd. sauf avec autorisation préalable
Problèmes d'installation ou de produits?
Ne retournez pas à l'endroit où le produit a été acheté.
Contactez le Service de Canarm au 1-800-265-1833 (CANADA) 1-800-267-4427
(U.S.A) 1-800-567-2513 (EN FRANÇAIS) du Lundi au Vendredi 8:00 - 5:00pm EST
Bekijk gratis de handleiding van Canarm SXB54CBD10500, stel vragen en lees de antwoorden op veelvoorkomende problemen, of gebruik onze assistent om sneller informatie in de handleiding te vinden of uitleg te krijgen over specifieke functies.
Productinformatie
| Merk | Canarm |
| Model | SXB54CBD10500 |
| Categorie | Ventilator |
| Taal | Nederlands |
| Grootte | 2706 MB |







