Handleiding
Je bekijkt pagina 11 van 14

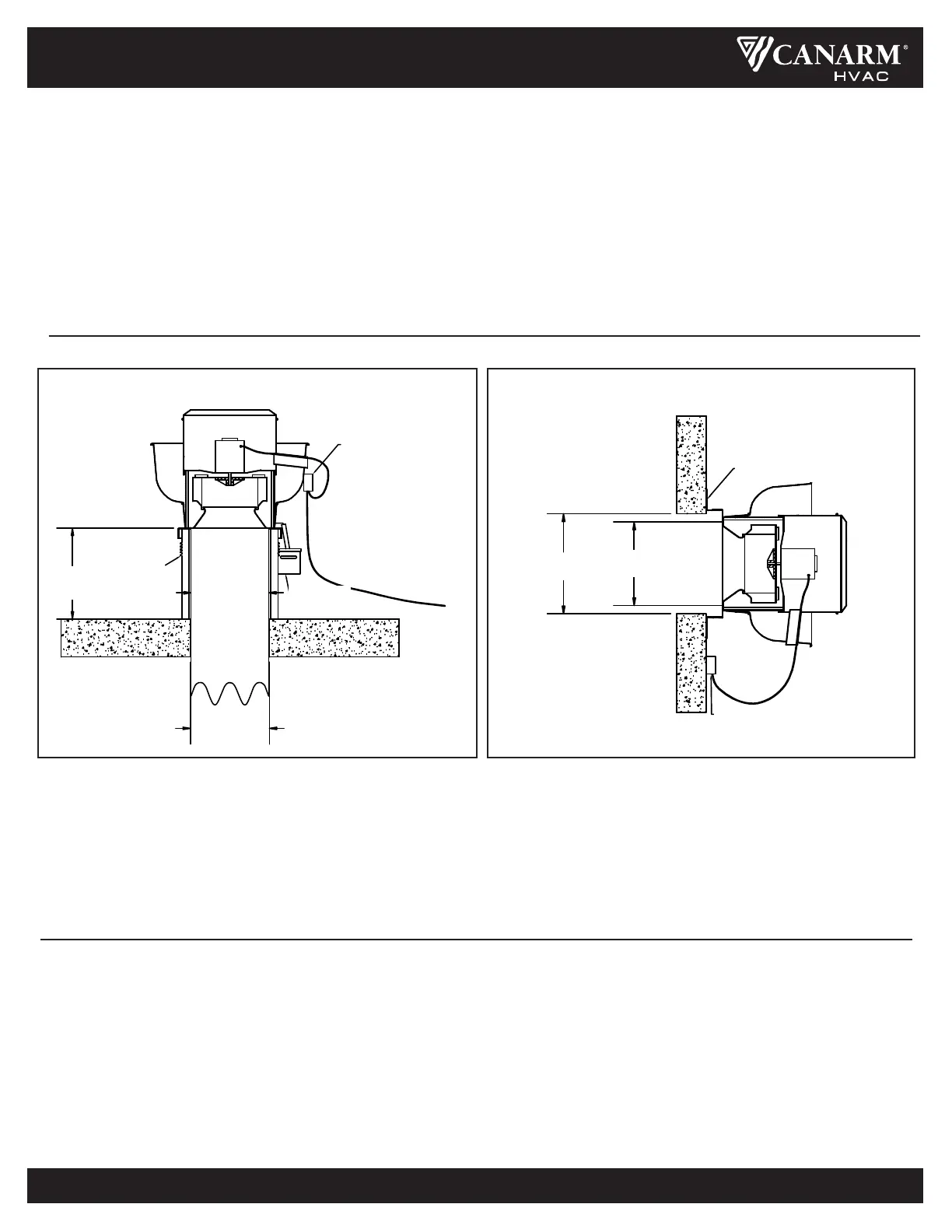
RECOMMENDED
ROOF OPENING
WELDED DUCT
BY OTHERS
GREASE
COLLECTOR
(OPTIONAL)
MINIMUM 20”
FROM ROOF TOP
VENTED CURB
DISCONNECT MOUNTED
OUTSIDE OF THE HOUSING,
WIRED THROUGH THE VENT
TUBE BY OTHERS
WIRED TO POWER
BY OTHERS
ROOF
DECK
WALL
WALL MOUNT BRACKET
(OPTIONAL)
RECOMMENDED
ROOF OPENING
WELDED DUCT
BY OTHERS
DISCONNECT MOUNTED
OUTSIDE OF THE HOUSING,
WIRED THROUGH THE VENT TUBE
1. Mettre l’appareil hors tension au disjoncteur.
2. Vérifiez toutes les attaches et vis afin qu’elles soient bien serrées.
3. Faire l’inspection et l’alignement et la tension si applicable.
4. Confirmer que le voltage utilisé est identique à celui du moteur et que le tout est bien câblé.
5. Faire la rotation de la roue pour s’assurer que ni la pale ni la courroie n’ est en contacte avec le boîtier.
6. Faire l’inspection du ventilateur et des conduits pour vous assurez qu’il n’y a aucun débris.
7. Assurez-vous que les grillages et accessoires sont bien fixés.
INSPECTION AVANT DÉMARRAGE
Démarrer le ventilateur et inspecter les items suivants :
1. Sens de la rotation.
2. Ampérage erroné du moteur.
3. Vibration excessive.
4. Bruit inusité.
5. Tension ou alignement de la courroie incorrecte (applicable sur l’entraînement par courroie seulement).
Si vous détectez un problème, fermez le courant du ventilateur et consulter la section dépannage pour connaître la cause du problème.
Le ventilateur devrait être inspecté après 30 minutes, 8 heures et 24 heures d’opération pour vous assurer que les attaches sont serrées
et que la tension des courries sont adéquate et bien alignées.
DÉMARRAGE
INSTALLATION DE L’ÉVACUATEUR DE RESTAURANT UL762
À DÉBIT VERS LE HAUT
INSTALLATION DE L’ÉVACUATEUR MURAL DE RESTAURANT À DÉBIT
VERS LE HAUT
OUVERTURE
DU TOIT
RECOMMANDÉE
OUVERTURE
DU TOIT
RECOMMANDÉE
CONDUIT SOUDÉ
PAR AUTRUI
CONDUIT SOUDÉ
PAR AUTRUI
REBORD VENTILÉ
MINIMUM
DE 20’’ DE LA
CIME DU TOIT
CÂBLÉ POUR ÊTRE
ALIMENTÉ PAR
D’AUTRES
MUR
SURFACE
DU TOIT
INTERRUPTEUR DE
FERMETURE INSTALLÉ À
L’EXTÉRIEUR DU BOÎTIER,
CÂBLÉ EN TRAVERS
DES TUBES DE
VENTILATION
PAR AUTRUI
INTERRUPTEUR DE FERMETURE
INSTALLÉ À L’EXTÉRIEUR DU
BOÎTIER, CÂBLÉ EN TRAVERS
DES TUBES DE VENTILATION
PAR AUTRUI
FERRURE D’INSTALLATION
MURALE (OPTIONNELLE)
COLLECTEUR
DE GRAISSE
(OPTIONNEL)
Tous les modèles à débit vers le haut sont listés UL/cUL et répondent aux normes
UL705 Supplement SC
s’appliquant aux cuisines
commerciales :
• La publication NFPA96 de L’Association Nationale de Protection des Incendies (ANPI) est la source primaire de cette application.
Consultez également les autorités locales pour connaître les autres règlements d’installation applicables dans votre région
• Les évacuateurs utilisés pour une ventilation de cuisine doivent avoir un câblage externe. (Le filage doit être installé dans le courant de l’air)
• L’installation doit permettre une inspection, nettoyage et entretien aisés du ventilateur (Des charnières, des collecteurs de graisse et
des interrupteurs de fermeture externes sont disponibles en option).
• Aucun volet ne peut être utilisé dans ce système.
APPLICATION D’ÉVACUATION DE RESTAURANT
SÉRIES ALX
ÉVACUATEUR EN ALUMINIUM REPOUSSÉ
ALX-M-FR-16_10_24 Page 4 de 7
Bekijk gratis de handleiding van Canarm ALX150-DD075EC, stel vragen en lees de antwoorden op veelvoorkomende problemen, of gebruik onze assistent om sneller informatie in de handleiding te vinden of uitleg te krijgen over specifieke functies.
Productinformatie
| Merk | Canarm |
| Model | ALX150-DD075EC |
| Categorie | Afzuigkap |
| Taal | Nederlands |
| Grootte | 4253 MB |







