Handleiding
Je bekijkt pagina 4 van 14

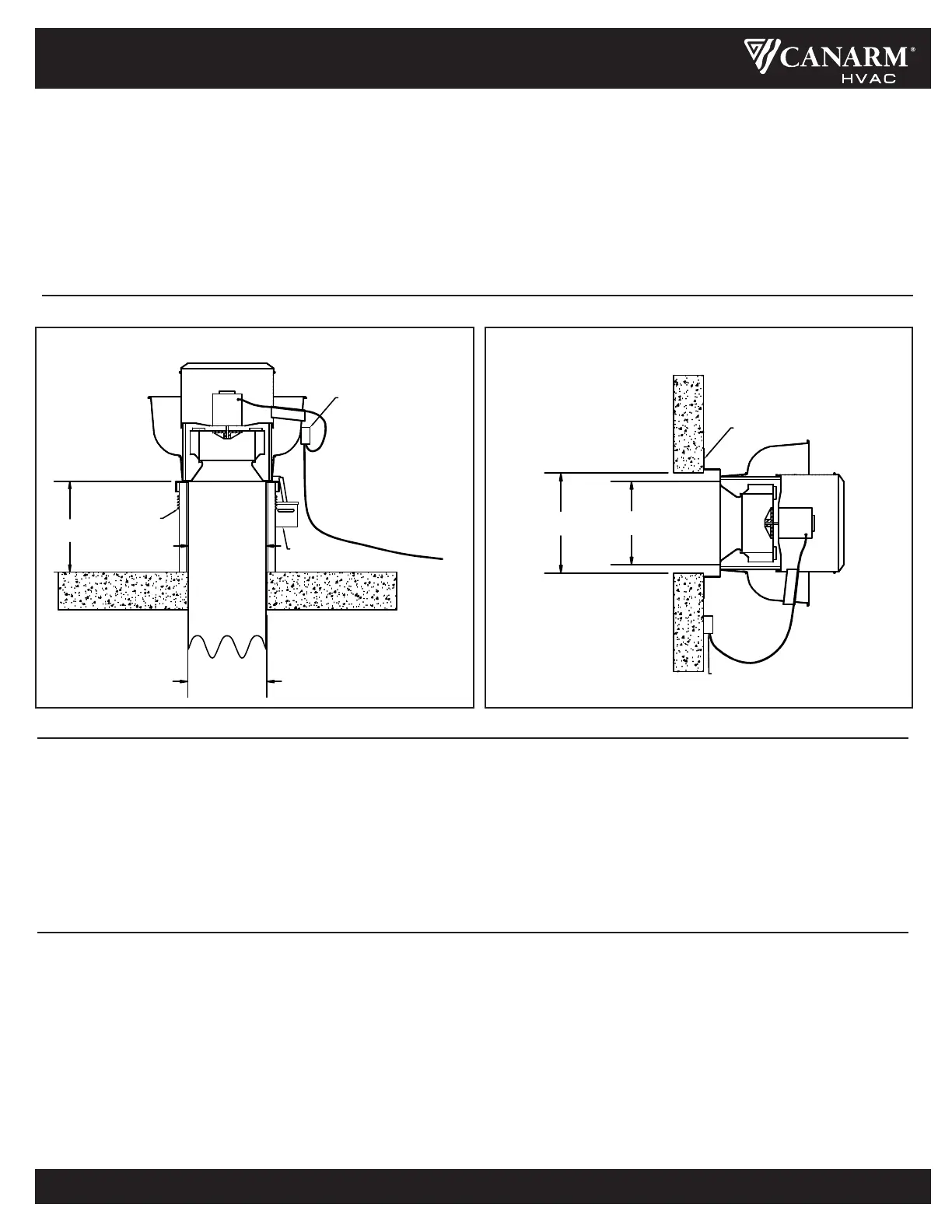
RECOMMENDED
ROOF OPENING
WELDED DUCT
BY OTHERS
GREASE
COLLECTOR
(OPTIONAL)
MINIMUM 20”
FROM ROOF TOP
VENTED CURB
DISCONNECT MOUNTED
OUTSIDE OF THE HOUSING,
WIRED THROUGH THE VENT
TUBE BY OTHERS
WIRED TO POWER
BY OTHERS
ROOF
DECK
WALL
WALL MOUNT BRACKET
(OPTIONAL)
RECOMMENDED
ROOF OPENING
WELDED DUCT
BY OTHERS
DISCONNECT MOUNTED
OUTSIDE OF THE HOUSING,
WIRED THROUGH THE VENT TUBE
All up-blast models are UL/cUL listed, they are capable to meet UL705 Supplement SC for Commercial Kitchen application:
• The National Fire Protection Association (NFPA) publication NFPA 96 is the primary source for this application. Also consult local
authorities for all other applicable codes and guidelines before installation.
• Exhaust fans used in kitchen ventilation applications must have external wiring. (Wiring must not be installed in the airstream).
• Installation must include a means for inspecting, cleaning and servicing the exhaust fan. (Curb hinge, grease collector and outdoor
disconnect switches are available for purchase as accessories)
• No dampers can be used in the system.
RESTAURANT EXHAUST APPLICATION
1. Lock out all power sources.
2. Inspect all fasteners and set screws and tighten as required.
3. Inspect belt alignment and tension where applicable.
4. Confirm power source voltage and motor voltage are the same and that the motor is wired correctly.
5. Rotate the wheel to ensure that neither the fan blade nor the belts come into contact with the housing.
6. Inspect the fan and the ductwork to ensure they are free of debris.
7. Check to ensure that all guards and accessories are securely mounted.
PRE-START INSPECTION
Turn the fan on and inspect for the following:
1. Direction of rotation.
2. Improper motor amperage.
3. Excessive vibration.
4. Unusual noise.
5. Improper belt tension or alignment (only applicable on belt-drive unit).
If a problem is discovered shut off the fan and refer to the section on troubleshooting to discover the cause of the problem. The fan should
be inspected after 30 minutes, 8 hours & 24 hours of operation to ensure all fasteners are tight and belts are properly tensioned and aligned.
START UP
UPBLAST UL762 RESTAURANT EXHAUST INSTALLATION UPBLAST WALL MOUNTED RESTAURANT EXHAUST INSTALLATION
ALX SERIES
SPUN ALUMINUM EXHAUSTERS
ALX-M-16_10_24 Page 4 of 7
Bekijk gratis de handleiding van Canarm ALX150-DD033EC, stel vragen en lees de antwoorden op veelvoorkomende problemen, of gebruik onze assistent om sneller informatie in de handleiding te vinden of uitleg te krijgen over specifieke functies.
Productinformatie
| Merk | Canarm |
| Model | ALX150-DD033EC |
| Categorie | Afzuigkap |
| Taal | Nederlands |
| Grootte | 4253 MB |







