Calorex Delta handleiding
Handleiding
Je bekijkt pagina 68 van 84

68
SD675650 ISSUE 6 M172 DELTA
DELTA SYSTEM OWNER INSTALLATION MANUAL
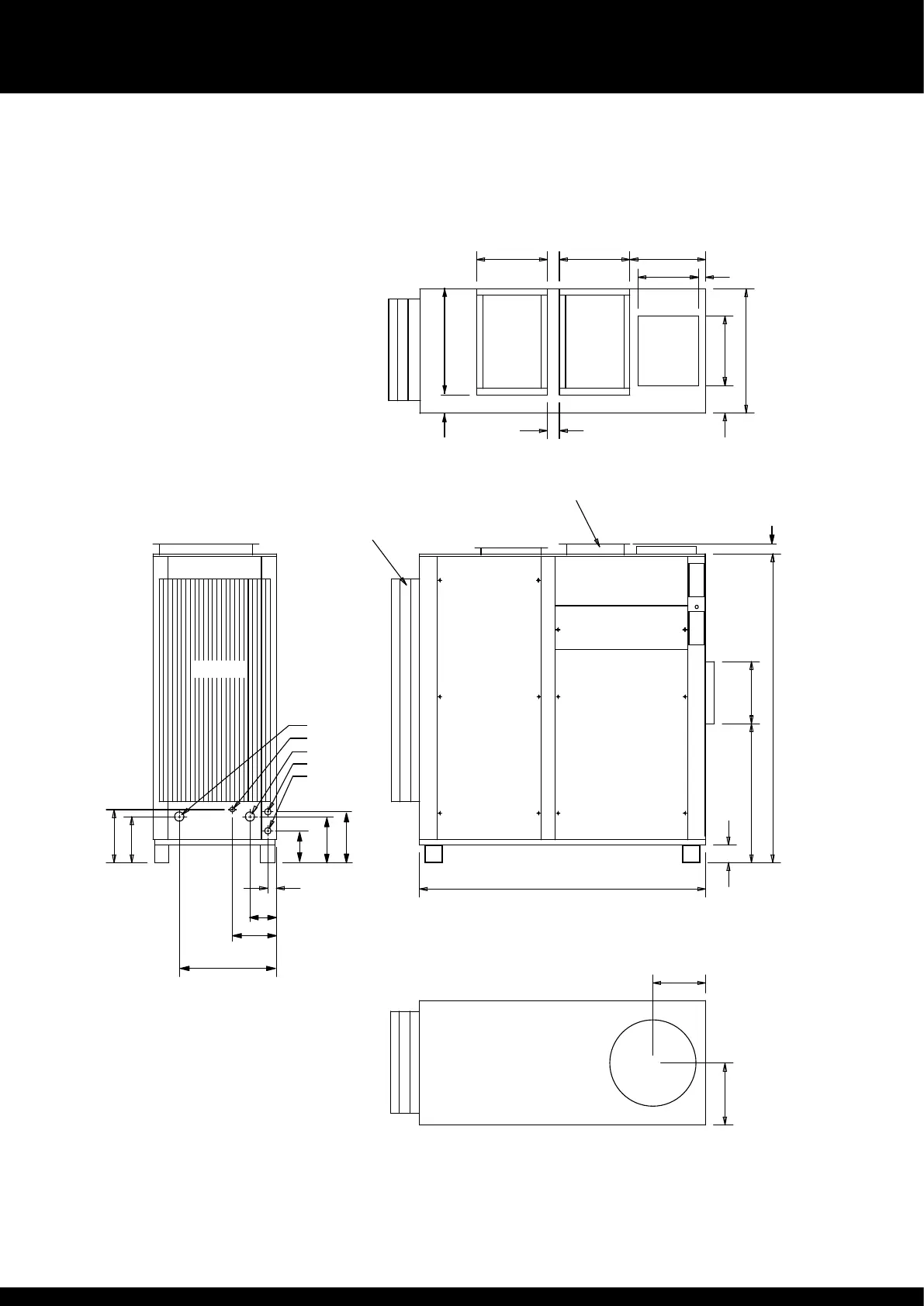
Side view
DT6A, DT6B, DT8B
ER Configuration
Standard LPHW connections 28mm copper stubs
Upgraded LPHW connections 35mm copper stubs
Pool water connections 1" PVC stubs
Drain ¾" BSPM stubs
* See duct dimension data
180
287
127
250
550
235
300
49
Pool water out
Drain
Pool water in
LPHW out
LPHW in
240
Bottom view (base)
Supply air option
diameter 20
"
*
298
350
Inlet filter duct
Front view
Filter
100
837
352
X 406
1910
Supply air
option
*
1620
Service panelService panel
395
155
704
41
342
425
406
406
62
109
590
Top view
*
*
Exhaust
air out
*
Display panel and
customer access to
control terminals
58
Fresh
air in
Supply air
option
Mains in electrical
access panel
Return air
Bekijk gratis de handleiding van Calorex Delta, stel vragen en lees de antwoorden op veelvoorkomende problemen, of gebruik onze assistent om sneller informatie in de handleiding te vinden of uitleg te krijgen over specifieke functies.
Productinformatie
| Merk | Calorex |
| Model | Delta |
| Categorie | Niet gecategoriseerd |
| Taal | Nederlands |
| Grootte | 13120 MB |







