Calorex Delta handleiding
Handleiding
Je bekijkt pagina 66 van 84

66
SD675650 ISSUE 6 M172 DELTA
DELTA SYSTEM OWNER INSTALLATION MANUAL
DT4A, DT4B
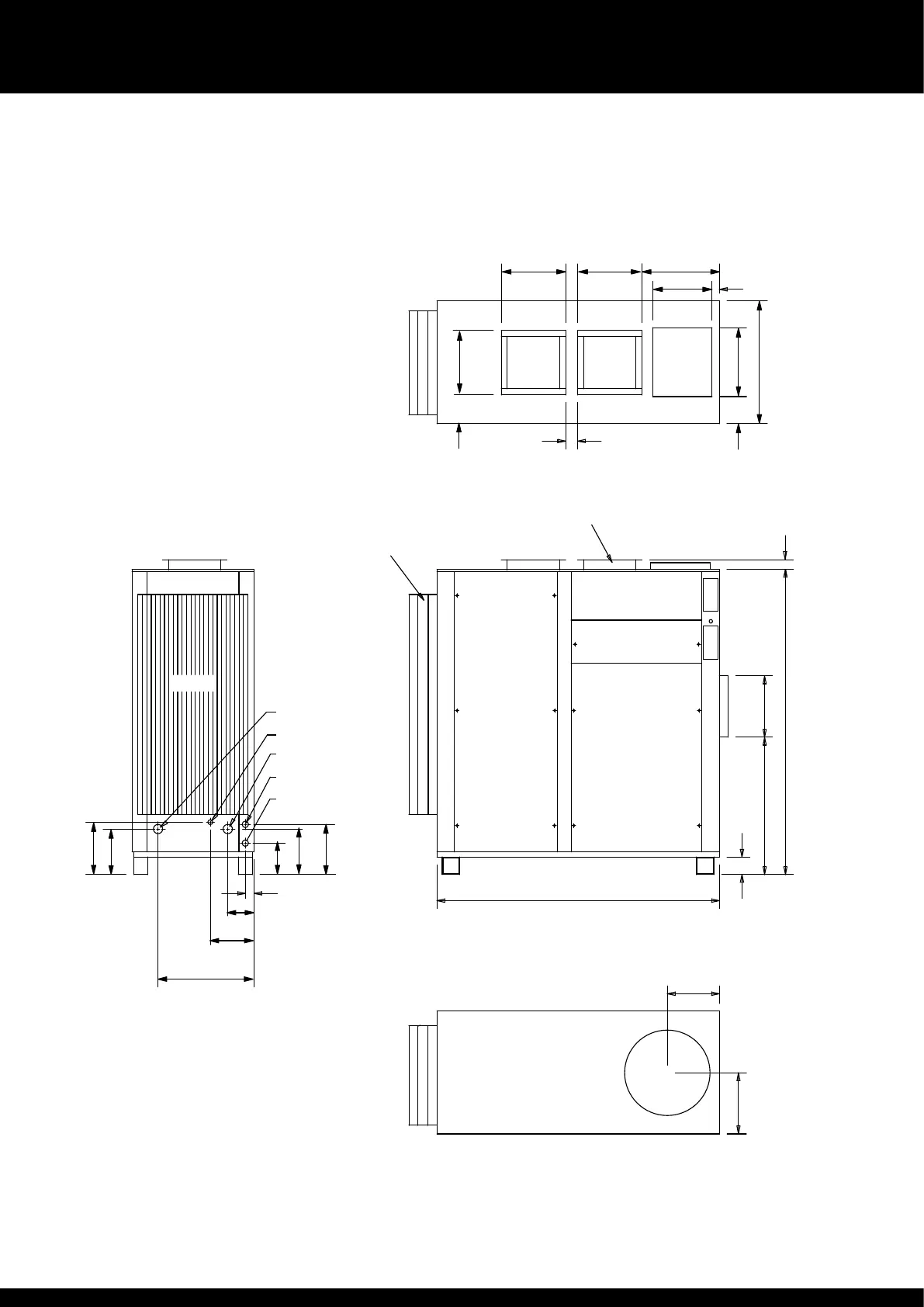
ER Configuration
180
287
49
127
250
550
235
300
240
298
350
100
837
352
X 406
1910
*
1620
58
Pool water connections 1" PVC stubs
Drain = 3/4 BSPM stub
* See duct dimension data
395
155
704
41342
443 370
370
68
165
370
*
*
Standard LPHW water connections 28mm copper stubs
Air off option
20
" diameter
*
Bottom view (base)
Air off
option
*
LPHW out
Pool water out
Drain
Pool water in
LPHW in
Side view
Filter
Service panel
Display panel and
customer access to
control terminals
Inlet filter duct
Mains in electrical
access panel
Exhaust
air out
Top view
Fresh
air in
Upgraded LPHW water connections 35mm copper stubs
Front view
Service panel
Air off
option
Air on
Bekijk gratis de handleiding van Calorex Delta, stel vragen en lees de antwoorden op veelvoorkomende problemen, of gebruik onze assistent om sneller informatie in de handleiding te vinden of uitleg te krijgen over specifieke functies.
Productinformatie
| Merk | Calorex |
| Model | Delta |
| Categorie | Niet gecategoriseerd |
| Taal | Nederlands |
| Grootte | 13120 MB |







