Calorex Delta DT 6 handleiding
Handleiding
Je bekijkt pagina 73 van 84

73
SD675650 ISSUE 6 M172 DELTA
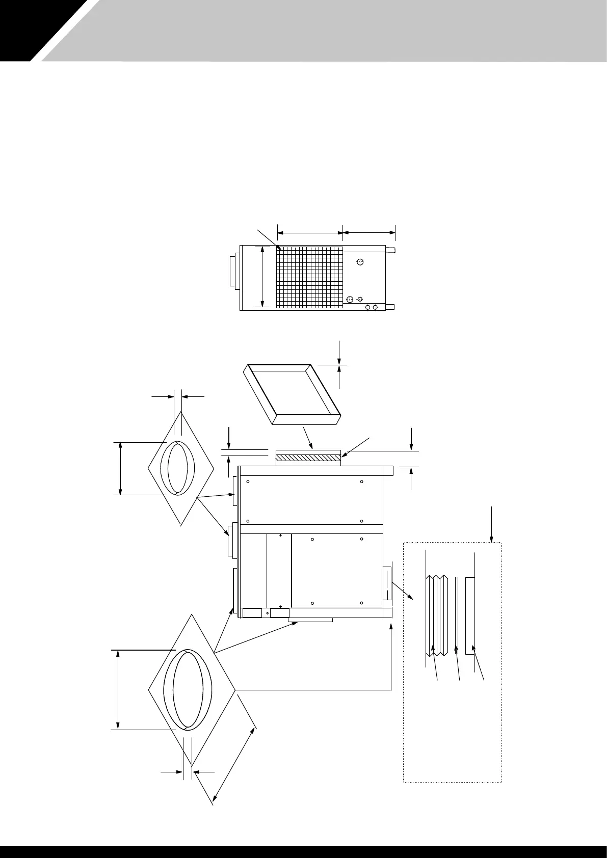
440 O/D
(DIA 18")
(20 SWG)
290 O/D
(DIA 12")
(20 SWG)
50
50
50
20SWG
160
Filter access
Do not cover
All supplied by Danerm Ltd. if
downdraught option ordered
Machine base plate
Floor
18" flexible duct
Adjustable duct clamp
18" adapter
610
537
6
6
0
Inlet filter duct
overall dimensions
Delta model 1 and 2 duct dimension data
498 square
440 O/D
(DIA 18")
(20 SWG)
290 O/D
(DIA 12")
(20 SWG)
50
50
50
20SWG
160
Filter access
Do not cover
All supplied by Danerm Ltd. if
downdraught option ordered
Machine base plate
Floor
18" flexible duct
Adjustable duct clamp
18" adapter
610
537
6
6
0
Inlet filter duct
overall dimensions
Delta model 1 and 2 duct dimension data
498 square
Bekijk gratis de handleiding van Calorex Delta DT 6, stel vragen en lees de antwoorden op veelvoorkomende problemen, of gebruik onze assistent om sneller informatie in de handleiding te vinden of uitleg te krijgen over specifieke functies.
Productinformatie
| Merk | Calorex |
| Model | Delta DT 6 |
| Categorie | Niet gecategoriseerd |
| Taal | Nederlands |
| Grootte | 13120 MB |






