Calorex Delta DT 6 handleiding
Handleiding
Je bekijkt pagina 67 van 84

67
SD675650 ISSUE 6 M172 DELTA
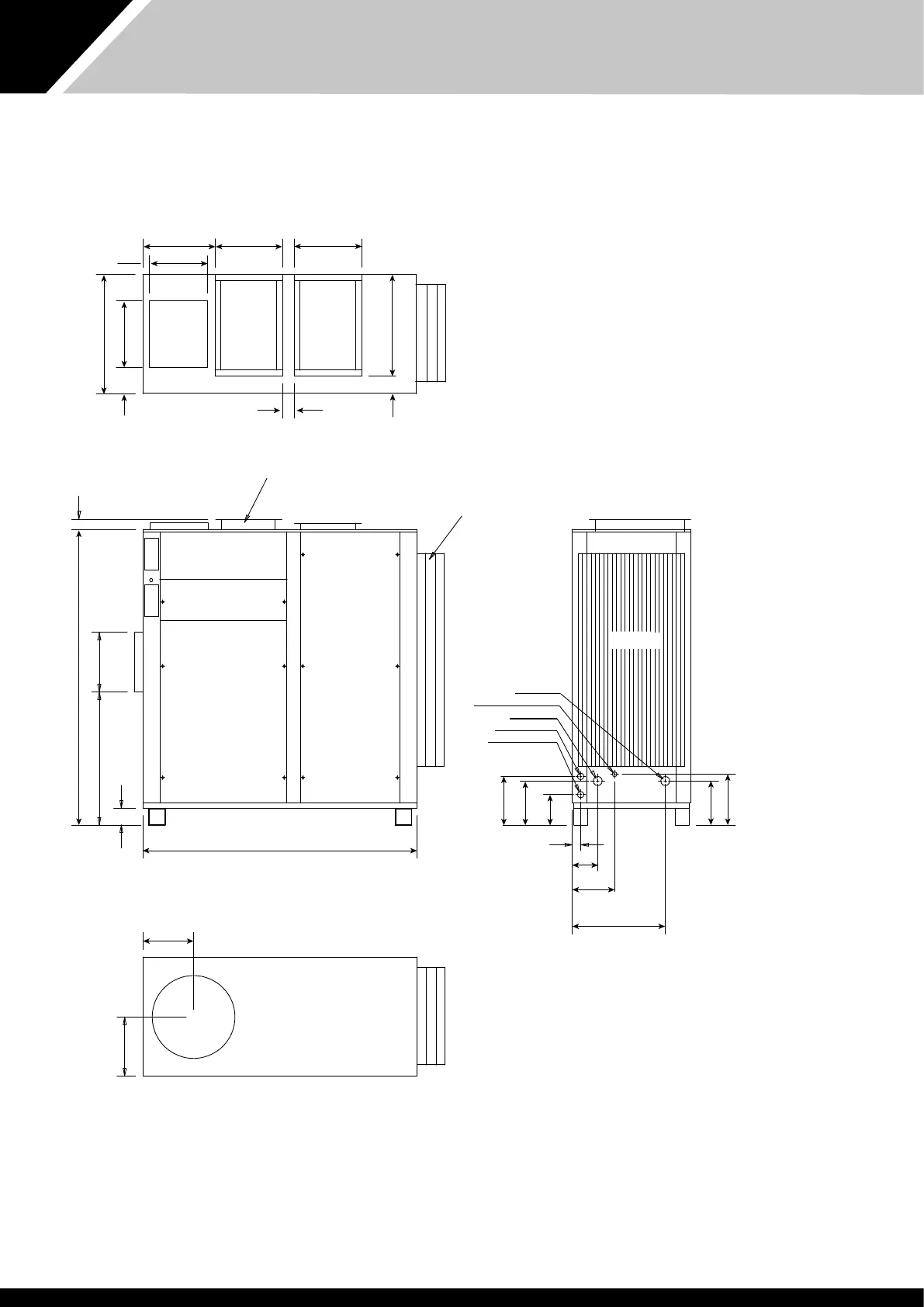
Side view
DT6A, DT6B, DT8B
EF Configuration
Standard LPHW water connections 28mm copper stubs
Pool water connections 1" PVC stubs
Drain ¾" BSPM stub
* See duct dimension data
180
250
550
235
300
49
127
Pool water out
Drain
Pool water in
LPHW out
LPHW in
240
Bottom view (base)
*
298
350
395
155
704
41
342
425
406
406
62
109
590
Top view
Supply air
option
*
Fresh air
in
*
Exhaust air
out
*
287
Inlet filter duct
Front view
Filter
100
837
352
X 406
1910
Supply air
option
*
1620
Service Panel
58
Service Panel
Display panel and
customer access to
control terminals
Mains in electrical
access panel
Supply air
option
diameter 20
"
Upgraded LPHW water connections 35mm copper stubs
Return air
Bekijk gratis de handleiding van Calorex Delta DT 6, stel vragen en lees de antwoorden op veelvoorkomende problemen, of gebruik onze assistent om sneller informatie in de handleiding te vinden of uitleg te krijgen over specifieke functies.
Productinformatie
| Merk | Calorex |
| Model | Delta DT 6 |
| Categorie | Niet gecategoriseerd |
| Taal | Nederlands |
| Grootte | 13120 MB |






