Calorex Delta DT 4 handleiding
Handleiding
Je bekijkt pagina 65 van 84

65
SD675650 ISSUE 6 M172 DELTA
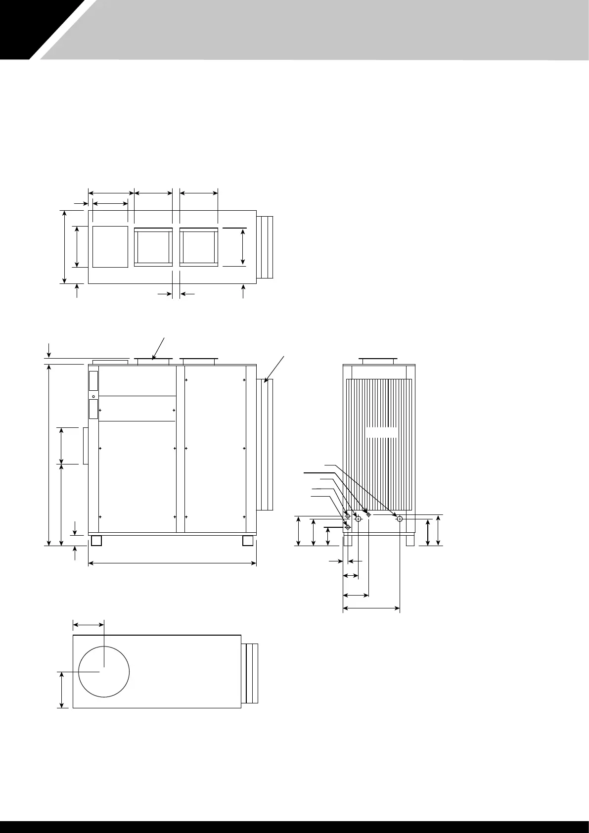
Bottom view (base)
Supply air option
20" diameter
*
298
350
Top view
DT4A, DT4B
EF Configuration
Pool water connections 1" PVC stubs
Drain ¾" BSPM stub
* See duct dimension data
395
155
704
41 342
443 370
370
68
165
370
Supply air
option
*
Fresh
air in
*
Exhaust
air out
*
Inlet filter duct
Standard LPHW water connections 28mm copper stubs
Upgraded LPHW water connections 35mm copper stubs
180
287
127
250
550
235
300
49
Pool water out
Drain
Pool water in
LPHW out
LPHW in
Side view
240
Filter
100
837
352
X 406
1910
Supply air
option
*
1620
Front view
58
Service panel
Display panel and
customer access to
control terminals
Mains in electrical
access panel
Service panel
Return air
Bekijk gratis de handleiding van Calorex Delta DT 4, stel vragen en lees de antwoorden op veelvoorkomende problemen, of gebruik onze assistent om sneller informatie in de handleiding te vinden of uitleg te krijgen over specifieke functies.
Productinformatie
| Merk | Calorex |
| Model | Delta DT 4 |
| Categorie | Niet gecategoriseerd |
| Taal | Nederlands |
| Grootte | 13120 MB |






